Аренда помещения свободного назначения, 1530 м² , Часовая улица 13
Площадь: 1530 м²
Цена аренды:
3 825 000 руб./мес
Цена:
2 500 руб./м²/мес

Часовая улица, дом
13,
Москва,
Россия
м. Сокол (11 мин.)
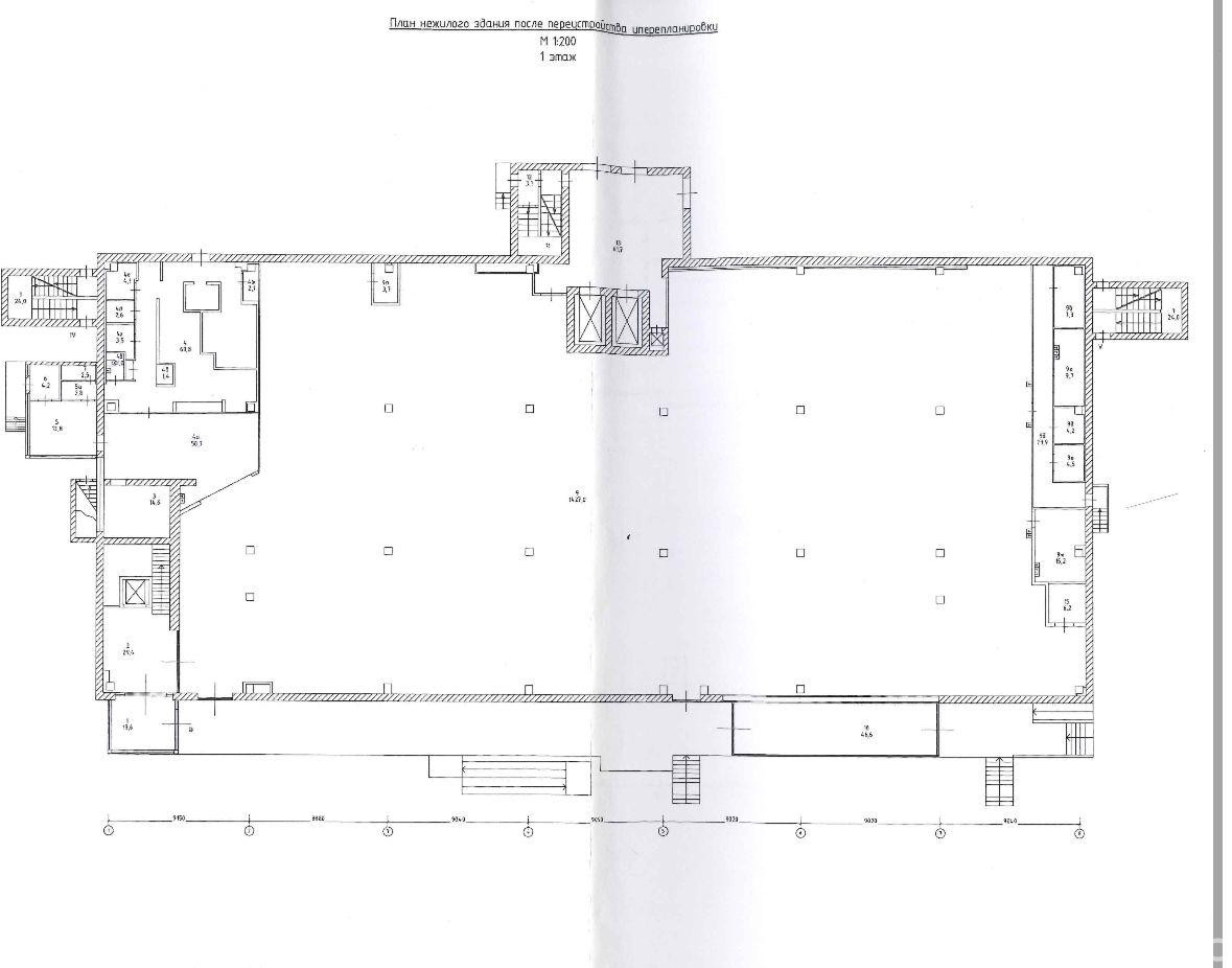
Об объекте
- Этаж расположения помещения
- 2 этаж
- Административный округ
- Северный административный округ
Описание объекта
==ЛОТ 222294 == ОТ СОБСТВЕННИКА, БЕЗ КОМИССИИ. Предлагаем отдельностоящее здание в аренду, рассмотрим любые виды деятельности. МОЖНО ЧЯСТЯМИ. гипермаркет, мебельный центр, строительный магазин, стрит ритейл, продуктовый магазин, общепит, под любое производство, торговая площадь. 3 этажа: подвал, 1 этаж, 2 этаж. На первом этаже расположены магазины одежды массмаркет, подвал заполнен дарксторами Вкусвилла и Яндекс лавокой. Есть пассажирский лифт для посетителей и грузовой лифт для разгрузки товара. Есть отдельные входы с целью круглосуточного доступа. Возможно арендовать часть площади. На втором этаже высота потолков 4 м. Электромощности будут предоставлены по запросу.
Часовая улица, дом 13, Москва, Россия
Цена аренды:
3 825 000 руб./мес
Общая площадь:1 530 м²


























