Аренда офиса, 1650 м² , улица Кулакова 20к1
Площадь: 1650 м²
                                   Цена аренды: 
                                    4 399 200 руб./мес
                                Цена:                                 
                                    2 667 руб./м²/мес

 улица Кулакова, дом
                        20к1,
                        Москва,
                    Россия
улица Кулакова, дом
                        20к1,
                        Москва,
                    Россия
 м. Строгино (8 мин.)
            м. Строгино (8 мин.)
Об объекте
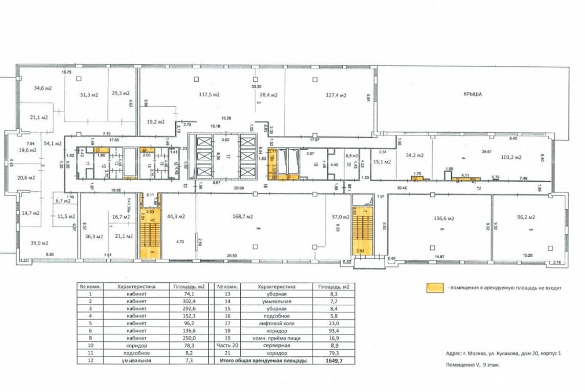
- Этаж расположения помещения
- 9 этаж
- Административный округ
- Северо-Западный административный округ
Описание объекта
==ЛОТ 222409 ==Предлагаем в аренду офисное помещение. Помещение имеет смешанную планировку, включая несколько небольших кабинетов и зоны open space. В здании также есть фойе, переговорные комнаты, серверная и места для хранения имущества и документов. Коммунальные платежи, включая электричество, уже включены в стоимость аренды. В здании установлены высокоскоростные лифты, системы вентиляции, кондиционирования воздуха, а также круглосуточно работает охрана и ведется видеонаблюдение. Для удобства арендаторов в бизнес-центре функционируют кафе, ресторан и столовая, а также есть банкоматы и платёжные терминалы. Отдельно оплачиваются интернет-телефония, использование парковки, клининговые услуги, предоставление юридического адреса и получение почты.
улица Кулакова, дом 20к1, Москва, Россия
                            Цена аренды:
                            4 399 200 руб./мес
                            Общая площадь:1 650 м² 








