Продажа помещения свободного назначения, 2150 м² , Главная улица 21А
Площадь: 2150 м²
Цена продажи:
870 000 000 руб.
Цена:
404 652 руб./м²

Главная улица, дом
21А,
Москва,
Россия
м. Щелковская (14 мин.)
- Контактные данные
- +7 (958) 59X-XX-XX
Об объекте
- Административный округ
- Восточный административный округ
Описание объекта
Продажа отдельно стоящего здания площадью 2 149,8 кв.м.
Адрес объекта: ВАО, г. Москва ул. Главная, 21А.
Здание построено в 1987 году и включает в себя:
Проектная мощность электричества 340 кВт.
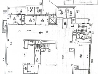
- 1-й этаж: 636 м2, высота потолков от 2,65 до 3,25 м. Этот этаж имеет свободную планировку и используется под торговые залы и склады. Здесь расположены четыре санузла.
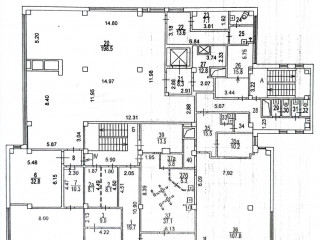
- 2-й этаж: 700 м2, высота потолков 3,25 м. Этаж имеет свободную планировку и используется под торговые залы.
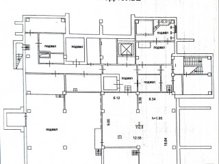
- Техподполье: 152 м2, высота потолков 1,95 м.
- Цокольный этаж: 440 м2, высота потолков 3,35 м. Здесь находятся венткамеры, подсобные помещения, санузлы и склады. Также есть грузовой подъемник, соединяющий цокольный этаж с 2-м этажом.
Помещения легко адаптируются под различные нужды без ущерба для несущих конструкций. Здание оборудовано централизованным отоплением, водоснабжением, системой видеонаблюдения и пожарной сигнализацией.
К зданию примыкают бесплатные муниципальные парковки, а также есть зона для погрузки и выгрузки.
До объекта от станции метро Щелковская курсируют автобусы каждые 5-7 минут.[#7629839#]
Главная улица, дом 21А, Москва, Россия
Цена:
870 000 000 руб.
404 652 руб./м²
Общая площадь:2 150 м²













