Аренда помещения свободного назначения, 155 м² , проспект Мира 54
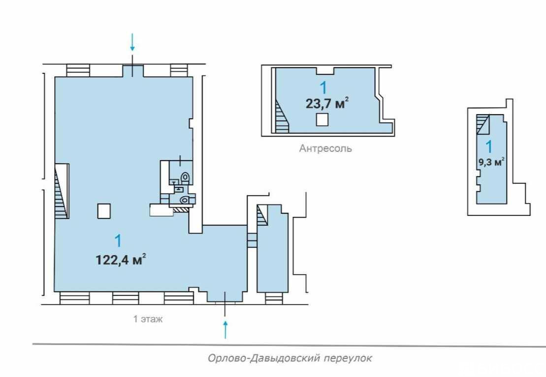
Площадь: 155 м²
Цена аренды:
700 000 руб./мес
Цена:
4 517 руб./м²/мес

проспект Мира, дом
54,
Москва,
Россия
м. Проспект Мира (5 мин.)
Об объекте
- Этаж расположения помещения
- 1 этаж
- Административный округ
- Центральный административный округ
Описание объекта
==ЛОТ 222739 ==Помещение свободного назначения в Москва просп. Мира, 54 (155 м) Тип объявления: Сдам Вид объекта: Помещение свободного назначения Общая площадь: 155 Этаж: 1 Этажность здания: 5 Помещение находится на первом этаже и антресоли дома, в шаговой доступности от метро Проспект Мира - 2 минуты пешком. Отдельный вход с первой линии. Место для размещения вывески. Помещение расположено в крупном сложившемся жилом и деловом районе с высокой плотностью застройки и развитой инфраструктурой. В окружении находятся торгово-офисные центры Олимпик Плаза, Олимпик Плаза 2 и Gardenmir, бизнес-центр Монд Плаза, Мещанский парк и Банный 9, головной офис Московского метрополитена, апарт-отель Greenstone, гостиница Radisson Blu Olympiyskiy Hotel Mosсow, Департамент угольной и торфяной промышленности, Министерство энергетики Российской Федерации и Роскосмос. Подходящие виды деятельности: торговое помещение, магазин, ресторан, кафе, аптека, салон красоты, банк, офис продаж, кофейня и т. д. мап - 700 000 рублей. Подробности по телефону или . ЕSтате сарIтаL - лучшие предложения на рынке коммерческой недвижимости в Москве.
проспект Мира, дом 54, Москва, Россия
Цена аренды:
700 000 руб./мес
Общая площадь:155 м²












