Аренда помещения свободного назначения, 755 м² , Проектируемый проезд № 4062 6с1
Площадь: 755 м²
Цена аренды:
1 920 832 руб./мес
Цена:
2 545 руб./м²/мес

Проектируемый проезд № 4062, дом
6с1,
Москва,
Россия
м. Технопарк
Об объекте
- Этаж расположения помещения
- 1 этаж
- Административный округ
- Южный административный округ
Описание объекта
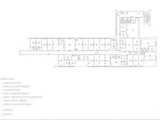
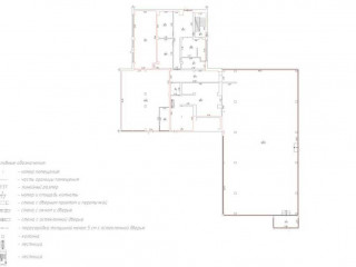
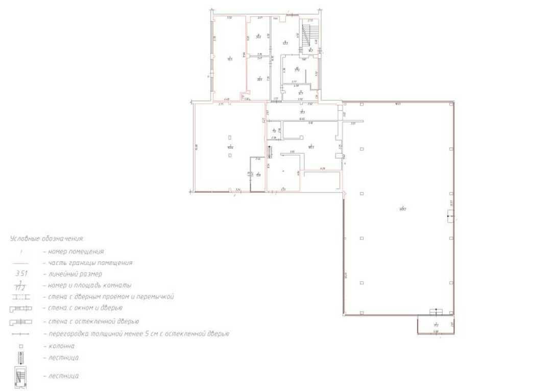
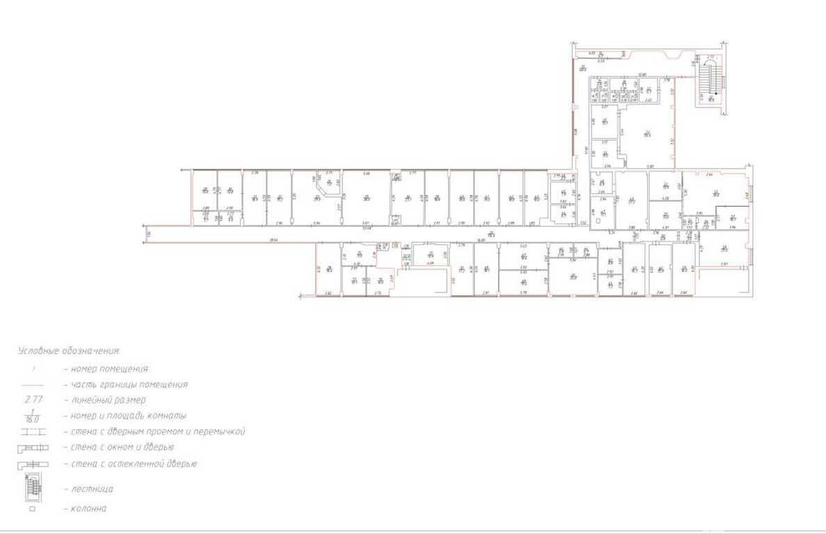
==ЛОТ 222791 ==Сдам отдельностоящее помещение под ресторан 755 м?, Москва, ПортПлаза (В+) 1-й этаж, дизайнерская отделка, 2 входа, кухня, мощность 350 кВт, вентиляция, вода. Высокий трафик — 200 000 чел. /мес. Современный БЦ у Москвы-реки, паркинг, развитая инфраструктура.
Проектируемый проезд № 4062, дом 6с1, Москва, Россия
Цена аренды:
1 920 832 руб./мес
Общая площадь:755 м²












