Продажа помещения свободного назначения, 607 м² , улица Вильгельма Пика 3Ас1
Площадь: 607 м²
Цена продажи:
258 217 375 руб.
Цена:
425 400 руб./м²

улица Вильгельма Пика, дом
3Ас1,
Москва,
Россия
м. улица Сергея Эйзенштейна
- Контактные данные
- +7 (495) 15X-XX-XX
Об объекте
- Административный округ
- Северо-Восточный административный округ
Описание объекта
Продажа отдельно стоящего здания в ЖК «Режиссер»
Относится к комплексу зданий, входящих в ЖК «Режиссер»
РнВ получено в 4 кв. 2024 г.
Преимущества:
Уникальное расположение: Единственный отдельно стоящий торговый объект на территории ЖК "Режиссер", центральное местоположение, напротив главного входа и рядом с центральным въездом в жилой комплекс.
Готовый бизнес: Здание с премиальной отделкой под офис от застройщика ФСК, готово к использованию. Сейчас используется как офис продаж ФСК.
Удобная транспортная доступность: 5 минут на машине до станции метро "ВДНХ".
Высокий потенциал: Подходит для различных видов деятельности: торговля, медицинский центр, частный детский сад, магазин, шоу-рум, представительский офис.
Развитая инфраструктура: ЖК бизнес-класса "Режиссер" с более чем 981 квартирами и населением более 1700 человек, полностью введен в эксплуатацию, идет заселение.
Удобная транспортная доступность: 5 минут на машине до станции метро "ВДНХ".
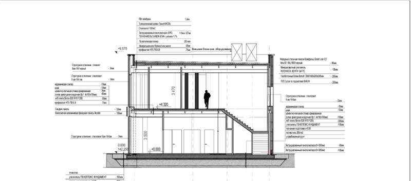
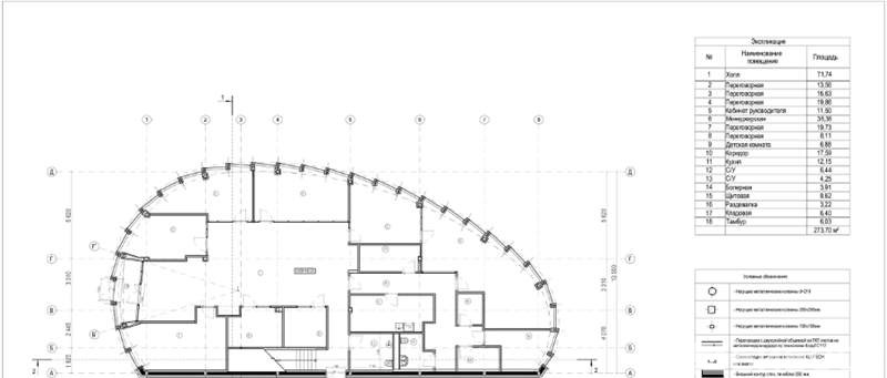
Характеристики здания:
Тип: Отдельно стоящее 2-х этажное здание
Общая площадь: 606,5 кв. м (без подвала)
o 1 этаж: 274 кв. м
o 2 этаж: 262 кв. м
Высота потолков: от 3,47 до 3,5 м
Входная группа: 1 вход с главного фасада, 1 вход с торца здания, есть подъезд для разгрузки, под помещением нет паркинга
Состояние: С премиальной отделкой от ФСК под офис
Инженерные системы: современные системы кондиционирования и вентиляции, выделенная электрическая мощность - 150 кВт
Земельный участок: Благоустроен перед зданием, общий с МКД
О жилом комплексе бизнес-класса «Режиссер»
Жилой комплекс бизнес-класса "Режиссер" расположен в престижном районе Ростокино и представляет собой современный комплекс из 3 домов, построенных на территории 1,7 га. Комплекс уже введен в эксплуатацию и активно заселяется, в нем насчитывается более 981 квартир, а общее количество жителей превысит 1700 человек. Важным преимуществом является расположение рядом со сложившейся жилой застройкой.[#7731736#]
улица Вильгельма Пика, дом 3Ас1, Москва, Россия
Цена:
258 217 375 руб.
425 400 руб./м²
Общая площадь:607 м²



























