Аренда помещения свободного назначения, 622 м² , Долгоруковская улица 40
Площадь: 622 м²
Цена аренды:
3 730 000 руб./мес
Цена:
5 997 руб./м²/мес

Долгоруковская улица, дом
40,
Москва,
Россия
м. Новослободская (1 мин.)
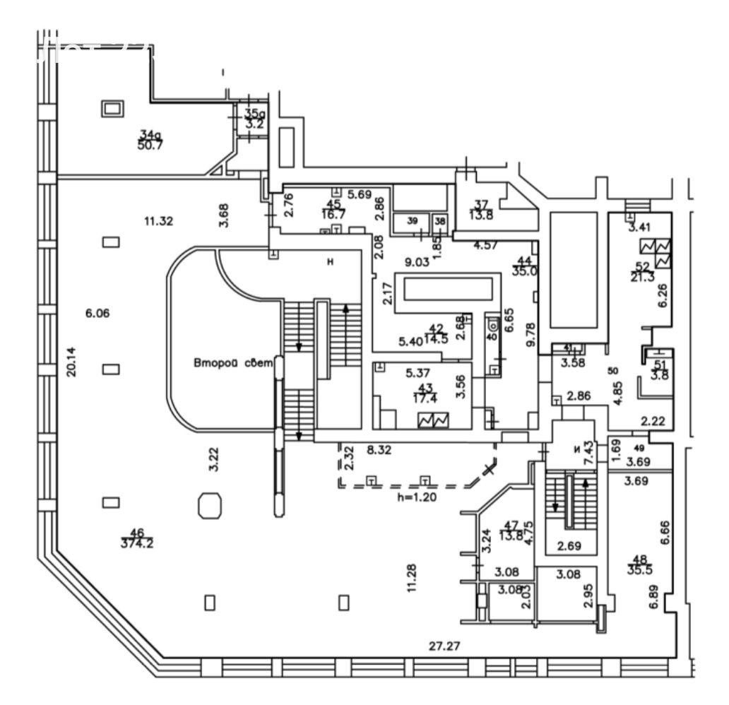
Об объекте
- Этаж расположения помещения
- 2 этаж
- Административный округ
- Центральный административный округ
Описание объекта
==ЛОТ 223036 ==Предлагается в аренду ПСН расположенное на 2 этаже бывшего ресторана УРЮК, в 40 метрах от метро Новослободская . Первый этаж будет занимать федеральный арендатор Перекресток Селект( премиальная линейка бренда ) , что обеспечит очень большой поток потенциальных клиентов и для вашего направления бизнеса .
Долгоруковская улица, дом 40, Москва, Россия
Цена аренды:
3 730 000 руб./мес
Общая площадь:622 м²












