Отдельно стоящее здание, Петровско-Разумовский проезд 24к19
Общая площадь: 450 м²
Арендные площади:
450 ‒ 450 м²
Арендная ставка:
1 050 000 руб./мес

Петровско-Разумовский проезд, дом
24к19,
Москва,
Россия
Об объекте
- Административный округ
- Северный административный округ
Описание объекта
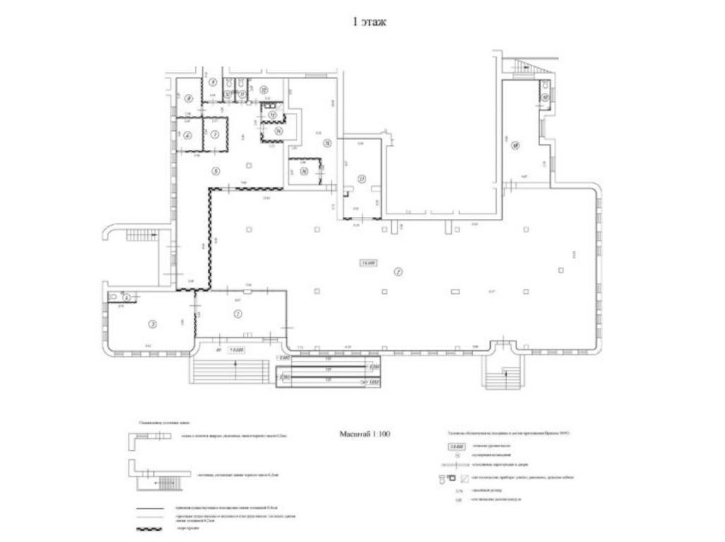
==ЛОТ 223019 == ОТ СОБСТВЕННИКА, БЕЗ КОМИССИИ. Предлагается в аренду здание — отдельный пристрой к жилому дому площадью 403 квадратных метров. Два выхода на улицу 2-я Хуторская. Есть удобная зона разгрузки. Здание прошло ремонт. Рядом с объектом построены три новых дома по программе реновации. Напротив здания расположен крупный бизнес-парк "Мирленд" с офисными помещениями. Вокруг здания проведено благоустройство. Отличное расположение: до станции метро "Дмитровская" можно дойти за 8 минут пешком, удобный выезд на улицы Бутырская, ТТК и Дмитровское шоссе.Готовность к въезду 1 марта 2026
Петровско-Разумовский проезд, дом 24к19, Москва, Россия
Арендная ставка:
1 050 000 руб./мес
Общая площадь:450 м²
Арендные площади:
450 ‒ 450 м²










