Аренда помещения свободного назначения, 98 м² , улица Арбат 6/2
Площадь: 98 м²
Цена аренды:
480 000 руб./мес
Цена:
4 898 руб./м²/мес

улица Арбат, дом
6/2,
Москва,
Россия
м. Арбатская (3 мин.)
Об объекте
- Этаж расположения помещения
- 2 этаж
- Административный округ
- Центральный административный округ
Описание объекта
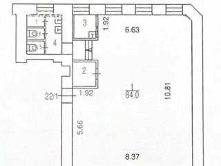
==ЛОТ 223140 == ОТ СОБСТВЕННИКА, БЕЗ КОМИССИИ. Сдаётся помещение свободного назначения в Москва ул. Арбат, 6/2 (98 м) Тип объявления: Сдам Вид объекта: Помещение свободного назначения Общая площадь: 98 Этаж: 2 Этажность здания: 4 Сдается просторное помещение 98 м на Арбате Адрес: ул. Арбат, 6/2, 2 этаж Общая площадь 98 м. Помещение: правильной прямоугольной формы, что позволяет эффективно и удобно зонировать пространство. Окна: 8 окон, обеспечивающих отличное естественное освещение. 4 окна выходят на Арбатский переулок, 4 во внутренний двор. Коммуникации и возможности: Электроснабжение: 40 кВт. Мощности достаточно для работы энергоемкого оборудования (кухонной техники, студийного света, серверов, торгового оборудования и т. д. ). Вентиляция: Проведена профессиональная вытяжная система на крышу. Это преимущество для открытия общепита (кафе, кондитерской, бара), косметологического кабинета или небольшой студии- мастерской. Назначение помещения для: Общепита: кафе, кофейня, бар, кондитерская, пельменная. Ретейла: фирменный магазин, шоу-рум, бутик, сувенирная лавка. Сферы красоты и здоровья: барбершоп, салон красоты, косметология, студия тату. Творчества и услуг: дизайн-студия, фотостудия, архитектурное бюро, агентство. Офиса: представительская компания, креативное пространство. Состояние: Ремонт: После выезда предыдущего арендатора. Помещение готово к проведению чистового ремонта под ваш бренд и задачи. Вход осуществляется через парадный подъезд с Арбатского переулка. Идеально для: Бизнеса, который хочет быть в центре внимания на главной туристической и культурной улице Москвы. Высокие потолки, хорошее освещение и готовые коммуникации сэкономят ваше время и бюджет на запуск проекта.
улица Арбат, дом 6/2, Москва, Россия
Цена аренды:
480 000 руб./мес
Общая площадь:98 м²











