Аренда помещения свободного назначения, 850 м² , Часовая улица 13
Площадь: 850 м²
Цена аренды:
2 125 000 руб./мес
Цена:
2 500 руб./м²/мес

Часовая улица, дом
13,
Москва,
Россия
м. Сокол (11 мин.)
Об объекте
- Этаж расположения помещения
- 2 этаж
- Административный округ
- Северный административный округ
Описание объекта
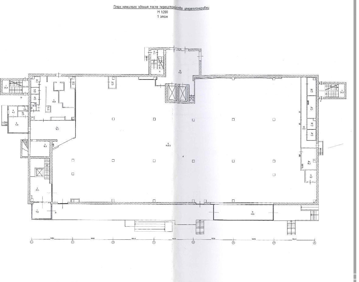
==ЛОТ 223145 == ОТ СОБСТВЕННИКА, БЕЗ КОМИССИИ. Предлагаем отдельностоящее здание в аренду, рассмотрим любые виды деятельности. МОЖНО ЧЯСТЯМИ. гипермаркет, мебельный центр, строительный магазин, стрит ритейл, продуктовый магазин, общепит, под любое производство, торговая площадь. 3 этажа: подвал, 1 этаж, 2 этаж. На первом этаже расположены магазины одежды массмаркет, подвал заполнен дарксторами Вкусвилла и Яндекс лавокой. Есть пассажирский лифт для посетителей и грузовой лифт для разгрузки товара. Есть отдельные входы с целью круглосуточного доступа. Возможно арендовать часть площади. На втором этаже высота потолков 4 м. Электромощности будут предоставлены по запросу.
Часовая улица, дом 13, Москва, Россия
Цена аренды:
2 125 000 руб./мес
Общая площадь:850 м²


























