Аренда помещения свободного назначения, 361 м² , Челюскинская улица 9
Площадь: 361 м²
Цена аренды:
812 925 руб./мес
Цена:
2 252 руб./м²/мес

Челюскинская улица, дом
9,
Москва,
Россия
м. Медведково
Об объекте
- Этаж расположения помещения
- 1 этаж
- Административный округ
- Северо-Восточный административный округ
Описание объекта
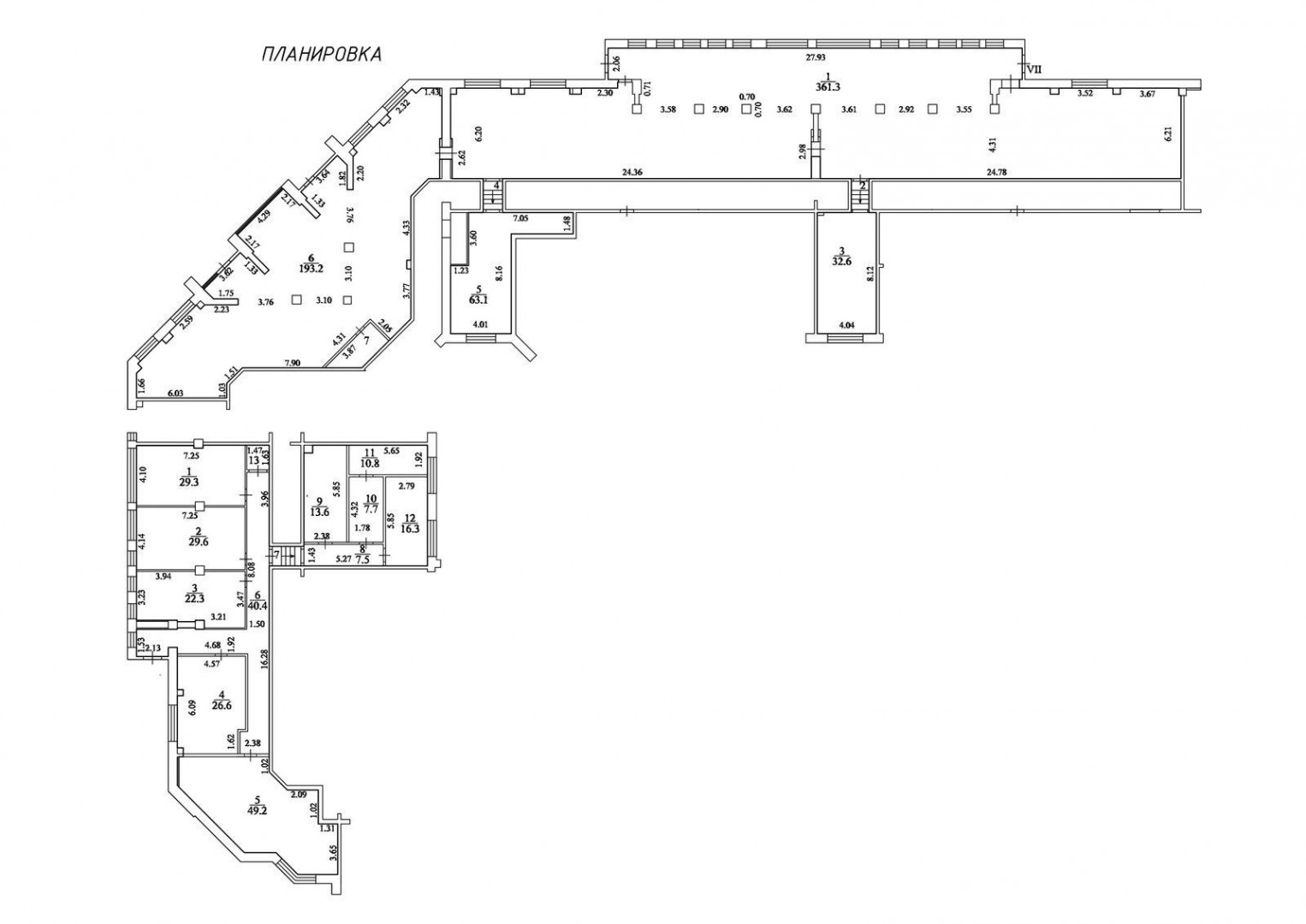
==ЛОТ 223151 == ОТ СОБСТВЕННИКА, БЕЗ КОМИССИИ. Помещение свободного назначения в Москва Челюскинская ул., 9 (633 м) Тип объявления: Сдам Вид объекта: Помещение свободного назначения Общая площадь: 361. 3 Этаж: 1 Этажность здания: 16 Я собственник помещения! Сдается псн на первом этаже жилого дома по адресу ул. Челюскинская, д. 9 Площадь помещения 361. 3кв. м. 4 отдельных входа, Высота потолков 3. 8 метров. Свежий ремонт в помещении (white box). Все коммуникации подключены. Есть бесплатная парковка за шлагбаумом на 30 м/м. Подойдет под любой вид бизнеса. Так же есть помещения с меньшей площадью (см. планировку). Так же можно объединить помещения и увеличить площадь. Оперативный показ помещения. Все оставшиеся во
Челюскинская улица, дом 9, Москва, Россия
Цена аренды:
812 925 руб./мес
Общая площадь:361 м²















