Аренда офиса, 250 м² , улица Барклая 6с3
Площадь: 250 м²
Цена аренды:
850 000 руб./мес
Цена:
3 400 руб./м²/мес

улица Барклая, дом
6с3,
Москва,
Россия
м. Парк Победы (8 мин.)
Об объекте
- Этаж расположения помещения
- 5 этаж
- Административный округ
- Западный административный округ
Описание объекта
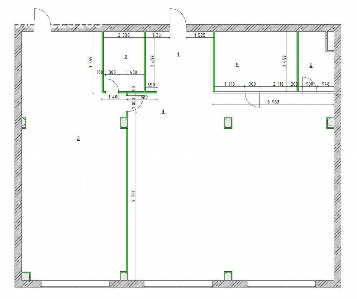
==ЛОТ 223165 == ОТ СОБСТВЕННИКА, БЕЗ КОМИССИИ. Современный офис площадью 250 квадратных метров предлагается в аренду в престижном бизнес-центре класса B+ «Барклай Парк». Помещение полностью готово к заселению и оборудовано качественным ремонтом, продуманным зонированием и приятной рабочей атмосферой. Расположен на 5-м этаже бизнес-центра, имеет доступ к 3 лифтам. Зонирование осуществляется с помощью стеклянных перегородок. Большие окна с роллетными шторами. Центральная и местная системы вентиляции и кондиционирования. Автоматическая система пожаротушения. Входная группа с центральной зоной рецепции. Круглосуточная охрана.
улица Барклая, дом 6с3, Москва, Россия
Цена аренды:
850 000 руб./мес
Общая площадь:250 м²










