Аренда склада, 9140 м² , Дорожная улица 3к19с1
Площадь: 9140 м²
Цена аренды:
18 280 000 руб./мес
Цена:
2 000 руб./м²/мес

Дорожная улица, дом
3к19с1,
Москва,
Россия
Об объекте
- Этаж расположения помещения
- 1 этаж
- Административный округ
- Южный административный округ
Описание объекта
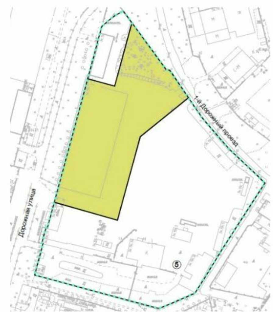
==ЛОТ 223174 == ОТ СОБСТВЕННИКА, БЕЗ КОМИССИИ. Сдам индустриально-складское здание общей площадью 9140м2. 0м2, расположенное на земельном участке площадью 2 Га. Объект не входит в зону КРТ; Объект имеет превосходную локацию и транспортную доступность: расположен в черте Москвы, внутри МКАД, в промышленной части ЮАО. Расстояние от МКАД – 4 км, от ТТК – 10 км, вблизи крупнейших транспортных магистралей города: ЮВХ, МСД, Варшавского и Каширского шоссе. Здание однообъемное, отапливаемое, шаг колонн 6х18 м., обладает высокими потолками (до 11, 5 м. ), не имеет подвала (возможна высокая нагрузка на полы). Большое количество въездных ворот в здании, за счет чего оно может быть легко разделено на блоки любого формата под разных арендаторов. Удобный земельный участок, примыкающий к существующей УДС, с парковкой и беспрепятственным проездом для фур. Выделенная мощность электроэнергии – 500 кВт, II-категория надежности, центральные системы тепло-, водоснабжения и канализации. Презентация по запросу.
Дорожная улица, дом 3к19с1, Москва, Россия
Цена аренды:
18 280 000 руб./мес
Общая площадь:9 140 м²














