Аренда помещения свободного назначения, 492 м² , Бабаевская улица 4
Площадь: 492 м²
Цена аренды:
820 000 руб./мес
Цена:
1 667 руб./м²/мес

Бабаевская улица, дом
4,
Москва,
Россия
м. Сокольники (5 мин.)
Об объекте
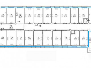
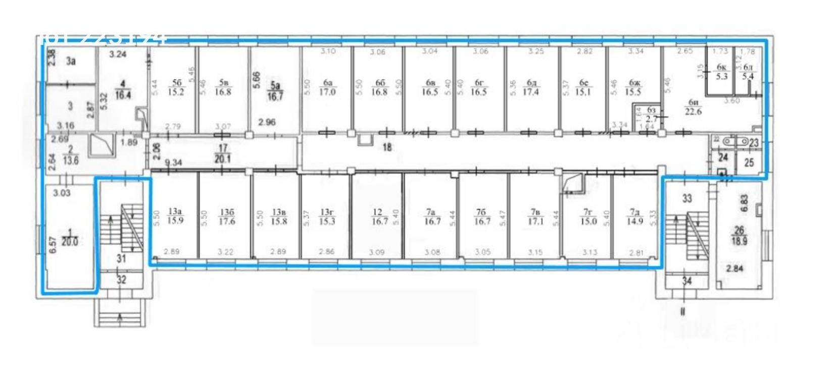
- Этаж расположения помещения
- 1 этаж
- Административный округ
- Восточный административный округ
Описание объекта
==ЛОТ 223194 == ОТ СОБСТВЕННИКА, БЕЗ КОМИССИИ. Предлагаем в аренду нежилое помещение. Компания "Бизнес-Недвижимость" предоставляет в аренду помещение на первом этаже четырехэтажного административного здания, расположенного в непосредственной близости от станции метро "Сокольники". Помещение не предназначено для использования в качестве хостела. Локация характеризуется высокой проходимостью и окружена жилой застройкой. Есть еще площадь по этому же адресу
Бабаевская улица, дом 4, Москва, Россия
Цена аренды:
820 000 руб./мес
Общая площадь:492 м²









