Аренда помещения свободного назначения, 916 м² , улица Новаторов 15
Площадь: 916 м²
Цена аренды:
1 450 809 руб./мес
Цена:
1 584 руб./м²/мес

улица Новаторов, дом
15,
Москва,
Россия
Об объекте
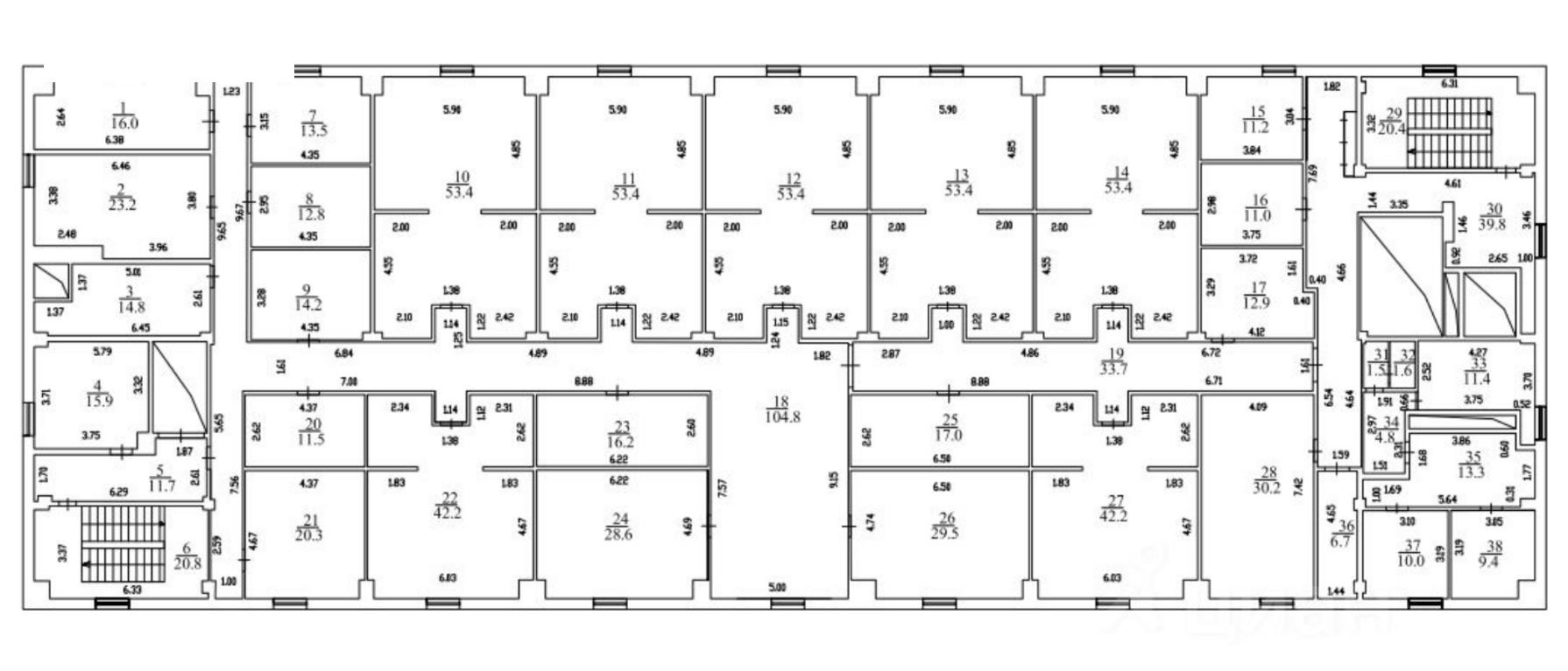
- Этаж расположения помещения
- 4 этаж
- Административный округ
- Юго-Западный административный округ
Описание объекта
==ЛОТ 223196 == ОТ СОБСТВЕННИКА, БЕЗ КОМИССИИ. Предлагает в аренду коммерческое помещение в четырехэтажном административном здании, расположенном в 10 минутах пешей доступности от станции метро "Калужская". Объект находится в густонаселенном жилом районе. Здание не оборудовано лифтом и имеет огороженную территорию. Планировка помещений смешанная, что позволяет адаптировать пространство под различные виды деятельности, включая спорт, квесты, офисы, шоу-румы и интернет-магазины.
улица Новаторов, дом 15, Москва, Россия
Цена аренды:
1 450 809 руб./мес
Общая площадь:916 м²









