Продажа офиса, 154 м² , квартал № 19 1с3
Площадь: 154 м²
Цена продажи:
34 048 395 руб.
Цена:
221 094 руб./м²

квартал № 19, дом
1с3,
Москва,
Россия
- Контактные данные
- +7 (495) 01X-XX-XX
Об объекте
- Административный округ
- Западный административный округ
Описание объекта
Акция: скидка до 31.12.2025
Представлена стоимость лотов, с учетом скидки
Комиссия брокерам
ПЕРЕДЕЛКИНО — это современный камерный бизнес-парк класса A из четырех пятиэтажных зданий с панорамным остеклением, расположенный на территории Новой Москвы в окружении леса и вблизи основных транспортных автомагистралей (Боровское ш, Киевское ш, Минское ш, Можайское ш)
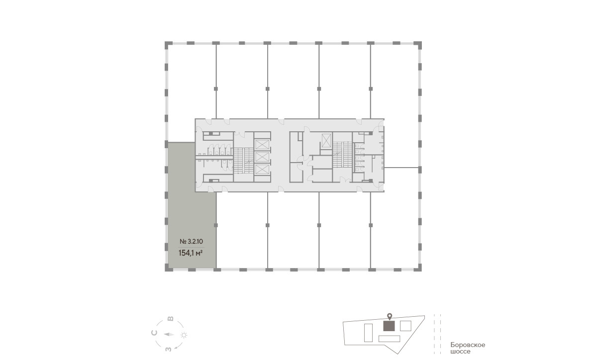
- Офисное помещение 154,1 м2 на 2 этаже (корпус 3)
- Панорамное остекление
- Отделка shell and core
- Высота потолков 3,8 м
- Шаг колонн 8,2 м * 8,8 м
Транспортная доступность:
- 10 минут пешком от м. Пыхтино
- 9 км от МКАД
- 35 минут до центра Москвы
Инфраструктура:
- Благоустроенная территория с прилегающей лесополосой
- Прогулочный бульвар с кафе и ресторанами
- Природный коворкинг в окружении леса
- На первых этажах офисных зданий просторные лобби с комфортной зоной ожидания, супермаркет, торговые помещения, отделения банков и сервисных служб, фитнес-студия
- Охраняемый наземный паркинг
- Зарядные станции для электромобилей
Ближайшее окружение:
- Парк Рассказовка
- Горнолыжный склон Ново-Переделкино
- Спорткомплекс Арктика
- Дом творчества писателей Переделкино
- Внуково Аутлет Вилладж
- Рестораны Сыроварня, Кофемания, Библиотека
Развитие Новой Москвы, растущая дорожная сеть, строящиеся жилые комплексы все это говорит о блестящих перспективах территории. У вас есть возможность получить высочайший уровень комфорта и сервиса. При этом, покупая небольшой офис или целое здание под штаб-квартиру компании, можете быть уверены, что делаете выгодную инвестицию.
Более подробную информацию можно уточнить у менеджера по телефону.
Все представленные проектные решения являются предварительными.[#7789521#]
квартал № 19, дом 1с3, Москва, Россия
Цена:
34 048 395 руб.
221 094 руб./м²
Общая площадь:154 м²




















