Аренда помещения свободного назначения, 180 м² , Бобров переулок 2
Площадь: 180 м²
Цена аренды:
900 000 руб./мес
Цена:
5 000 руб./м²/мес

Бобров переулок, дом
2,
Москва,
Россия
м. Тургеневская (3 мин.)
Об объекте
- Этаж расположения помещения
- 1 этаж
- Административный округ
- Центральный административный округ
Описание объекта
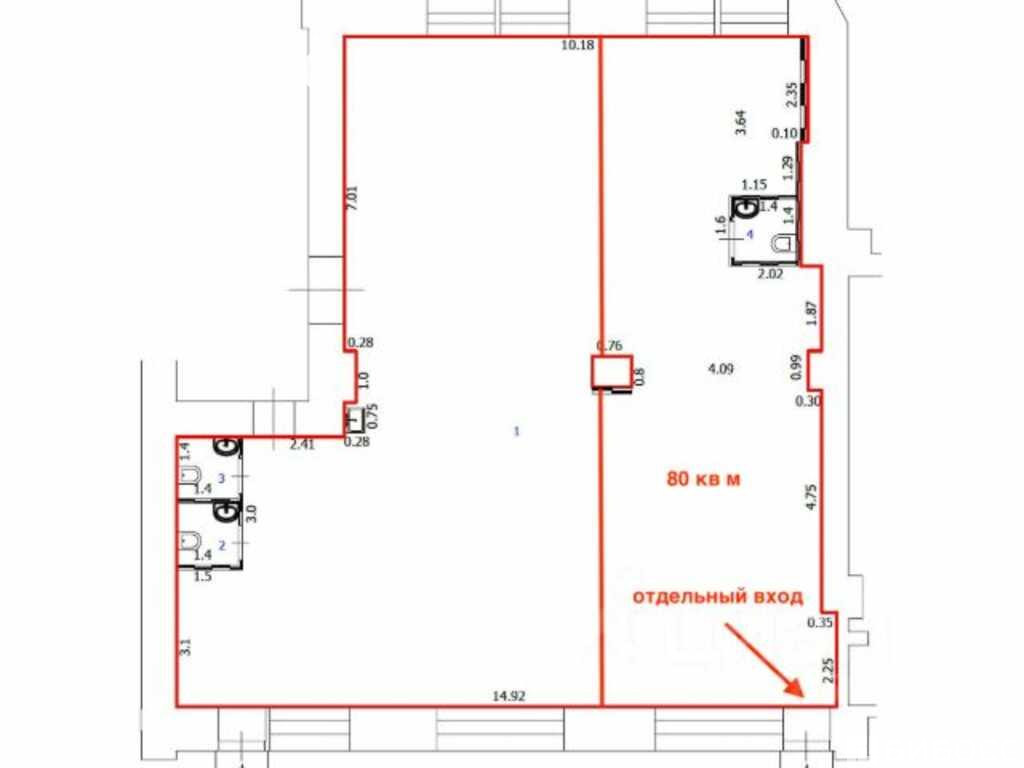
==ЛОТ 223280 == ОТ СОБСТВЕННИКА, БЕЗ КОМИССИИ. Предлагается в аренду торговое помещение в центре Москвы, расположенное по адресу: Бобров переулок, 2. На первом этаже 10-этажного административного здания, это пространство общей площадью 180 м? идеально подойдет для реализации самых разнообразных бизнес-идей. Отдельный вход с улицы и панорамные окна создают комфортные условия для ваших клиентов и обеспечивают повышенное внимание к вашему бизнесу. Помещение находится в стадии завершения чернового ремонта, готовится под чистовую отделку, что позволяет вам настроить пространство под ваши нужды. Высота потолков составляет 4 метра, а гибкие условия аренды и наличие арендных каникул сделают вашу аренду максимально выгодной. Внутренняя инфраструктура включает все необходимые коммуникации: центральное отопление, приточную вентиляцию и кондиционирование, а также мощность электричества 60 кВт, что позволит устроить как магазины, так и кафе, банковские отделения или медицинские центры. Удобное расположение всего в 3 минутах пешком от станции метро Тургеневская делает это пространство еще более привлекательным. В окрестностях располагаются популярные достопримечательности Москвы, что создает дополнительный поток клиентов и способствует успешному развитию вашего бизнеса.
Бобров переулок, дом 2, Москва, Россия
Цена аренды:
900 000 руб./мес
Общая площадь:180 м²









