Аренда помещения свободного назначения, 181 м² , улица Плющиха 42
Площадь: 181 м²
Цена аренды:
1 500 000 руб./мес
Цена:
8 288 руб./м²/мес

улица Плющиха, дом
42,
Москва,
Россия
м. Киевская (8 мин.)
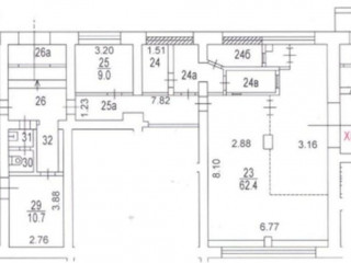
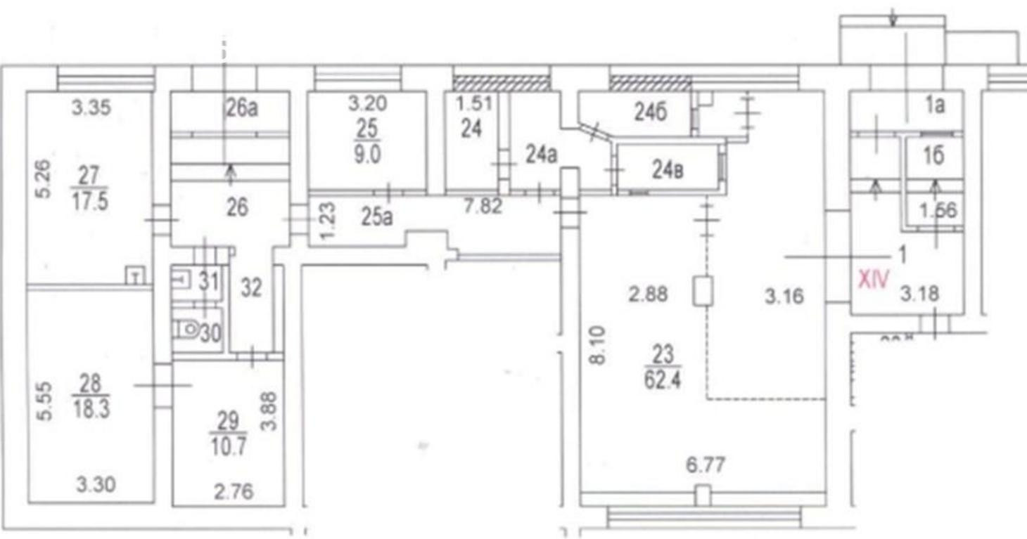
Об объекте
- Этаж расположения помещения
- 1 этаж
- Административный округ
- Центральный административный округ
Описание объекта
==ЛОТ 223285 == ОТ СОБСТВЕННИКА, БЕЗ КОМИССИИ. Предлагается в аренду коммерческое помещение, расположенное на первой линии в престижном районе Москвы. Помещение характеризуется высокой проходимостью благодаря обеспеченному трафику, включающему жителей, офисных работников и туристов.
Архитектурные особенности включают панорамные окна и высоту потолков 4,6 метра, что способствует визуальному расширению пространства и формированию премиального восприятия бренда.Для удобства зонирования и разделения потоков посетителей предусмотрены две отдельные входные группы.Транспортная доступность объекта обеспечивается близостью к станции метро «Смоленская» (пешеходная доступность составляет 10 минут), а также наличием удобных выездов на Садовое кольцо и набережные.
улица Плющиха, дом 42, Москва, Россия
Цена аренды:
1 500 000 руб./мес
Общая площадь:181 м²











