Аренда офиса, 251 м² , Несвижский переулок 3
Площадь: 251 м²
Цена аренды:
1 885 500 руб./мес
Цена:
7 512 руб./м²/мес

Несвижский переулок, дом
3,
Москва,
Россия
м. Парк культуры (5 мин.)
Об объекте
- Этаж расположения помещения
- 1 этаж
- Административный округ
- Центральный административный округ
Описание объекта
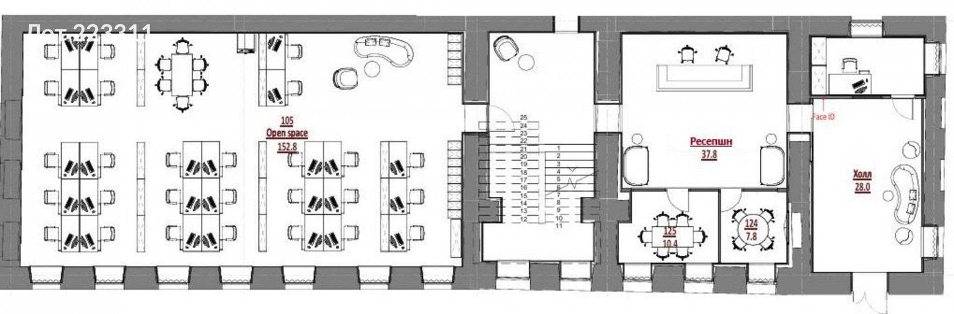
==ЛОТ 223311 == ОТ СОБСТВЕННИКА, БЕЗ КОМИССИИ. Предлагается в аренду офисное помещение на 1 и 2 этажах соответствующее высоким стандартам качества отделки. В помещении проведены все необходимые коммуникации для обеспечения комфортных условий труда. Офисное пространство характеризуется хорошим естественным освещением. Обеспечивается круглосуточная охрана и профессиональное обслуживание. Все эксплуатационные расходы и коммунальные платежи уже включены в арендную плату. Есть еще площадь по этому же адресу
Несвижский переулок, дом 3, Москва, Россия
Цена аренды:
1 885 500 руб./мес
Общая площадь:251 м²










