Аренда помещения свободного назначения, 613 м² , улица Пресненский Вал 14
Площадь: 613 м²
Цена аренды:
1 840 500 руб./мес
Цена:
3 003 руб./м²/мес

улица Пресненский Вал, дом
14,
Москва,
Россия
м. Улица 1905 года (5 мин.)
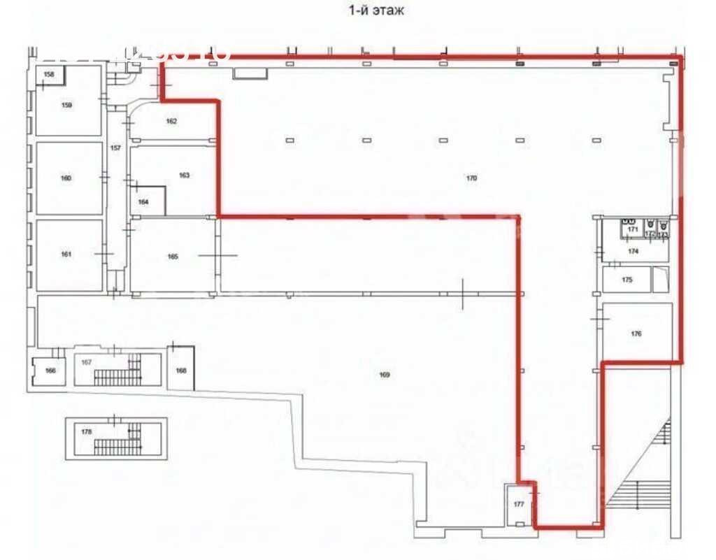
Об объекте
- Этаж расположения помещения
- 1 этаж
- Административный округ
- Центральный административный округ
Описание объекта
==ЛОТ 223316 == ОТ СОБСТВЕННИКА, БЕЗ КОМИССИИ. АРЕНДА ОТ СОБСТВЕННИКА СКЛАД В ЦЕНТРЕ МОСКВЫ В шаговой доступности от станции метро сдаётся отапливаемое и тёплое помещение свободного назначения. Ворота для въезда высотой 3 м. Пол из бетона и плитки. Высота потолков составляет 4 метра до уровня вентиляции. Помещение оснащено системой автоматического пожаротушения, датчики задымления и приточно-вытяжную вентиляцию. Стоимость аренды 1 840 500 руб/мес, подтверждена собственником помещения. Возможное использование: склад, цех, производство, автосервис. готоы рассмотреть на долгосрок надежного арендатора , все обсуждается , торг уместен, пишите звоните по любым вопросам.
улица Пресненский Вал, дом 14, Москва, Россия
Цена аренды:
1 840 500 руб./мес
Общая площадь:613 м²










