Продажа офиса, 260 м² , 3-я Хорошёвская улица 18/2
Площадь: 260 м²
Цена продажи:
111 337 920 руб.
Цена:
428 223 руб./м²

3-я Хорошёвская улица, дом
18/2,
Москва,
Россия
м. Зорге
- Контактные данные
- +7 (495) 02X-XX-XX
Об объекте
- Административный округ
- Северо-Западный административный округ
Описание объекта
Гибкие условия оплаты (рассрочка, отсрочка, ипотека) .
Продажа премиальных офисов в бизнес центре AVIUM. Две 34-этажные башни, объединённые галереей и дочерним корпусом.
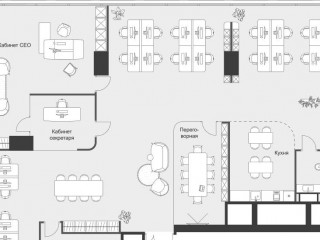
Здание класса А, этаж 5 из 33, просторный современный офис под чистовую отделку, открытая планировка, витринные окна, высота потолков 3,6 м.
Сдача 2028 г, прямая продажа от застройщика Неометрия.
Расположение и транспортная доступность:
- Метро в шаговой доступности: МЦК Зорге - менее 1 минуты пешком, метро «Октябрьское поле» - 7 минут, ММДЦ «Москва-Сити» - 12 минут.
- Удобный выезд на Ленинградский проспект и Звенигородское шоссе.
Благоустройство:
- Высококлассный бизнес-центр с авторской архитектурой и панорамными видами.
- В каждой башне - эффектные лобби, современные переговорные и лаундж-зоны. Скоростные лифты с интеллектуальной системой, ожидание до 45 секунд.
- Приточно-вытяжная вентиляция, индивидуальные санузлы, отдельные фуд-зоны.
- Ландшафтный парк 1,2 Га и главный пешеходный бульвар для резидентов. Концепция «сухие ноги» - прямой доступ к торговым зонам без выхода на улицу.
- Безопасность на высоте: видеонаблюдение и контроль доступа, система электронных пропусков, комплекс пожарной автоматики.
- Чистый воздух, энергоэффективные технологии, уникальная концепция озеленения и биофильного дизайна.
Инфраструктура комплекса:
- Форматы на любой вкус - от кофе с собой до изысканных ресторанов с видом на бульвар.
- Фитнес-студия, расположенная на втором этаже делового центра, позволяет легко сочетать рабочие задачи с заботой о себе.
- Площадь современного ритейла на 7000 м.
- Подземный паркинг для резидентов делового центра сочетает функциональность и футуристичный дизайн.
Почему AVIUM:
- Престиж, приватность, отличная транспортная доступность, новая доминанта района, признанная архитектура.
- Пространства без колонн в углах, идеально подходят для руководителей и современных команд.
- Форматы офисов для любого масштаба бизнеса: от 95 до 1345 м.[#7641829#]
3-я Хорошёвская улица, дом 18/2, Москва, Россия
Цена:
111 337 920 руб.
428 223 руб./м²
Общая площадь:260 м²





























