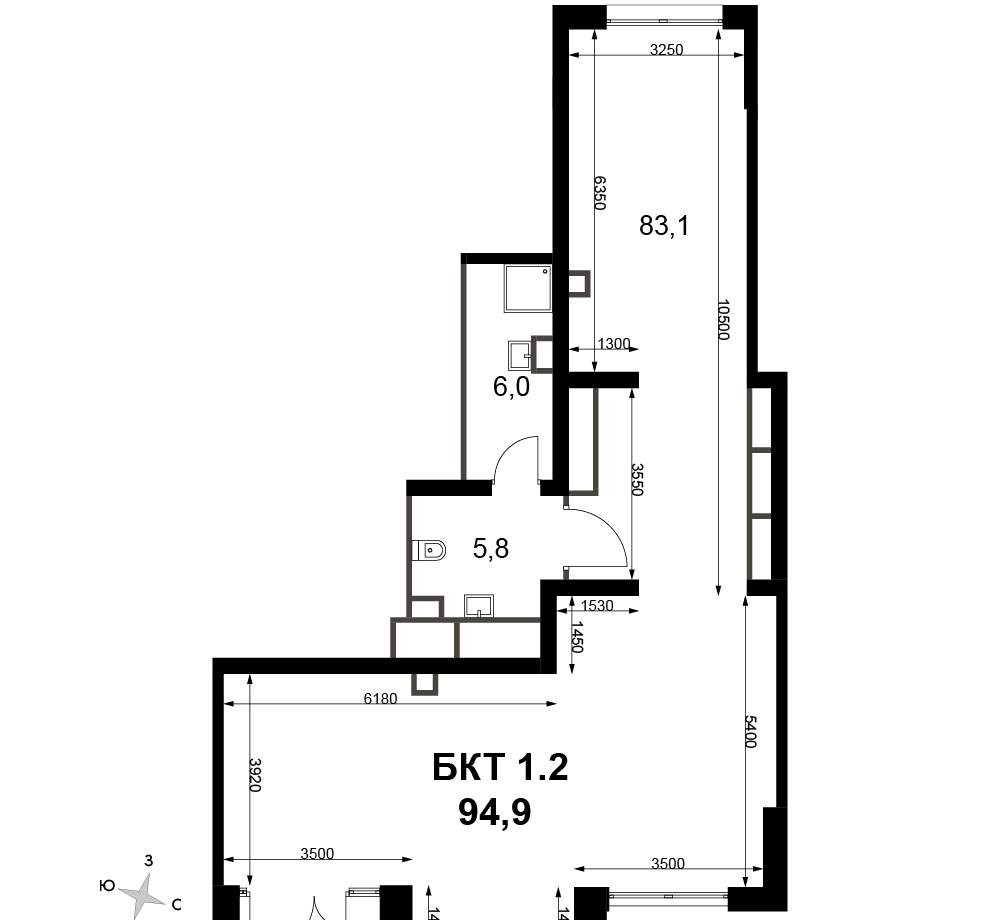
Продажа помещения свободного назначения, 95 м² , Строительный проезд 9
Площадь: 95 м²
Цена продажи:
48 738 800 руб.
Цена:
513 040 руб./м²

Строительный проезд, дом
9,
Москва,
Россия
- Контактные данные
- +7 (495) 15X-XX-XX































