Аренда помещения свободного назначения, 1090 м² , Ступинский проезд 1Ас3
Площадь: 1090 м²
Цена аренды:
1 471 500 руб./мес
Цена:
1 350 руб./м²/мес

Ступинский проезд, дом
1Ас3,
Москва,
Россия
Об объекте
- Этаж расположения помещения
- 1 этаж
- Административный округ
- Южный административный округ
Описание объекта
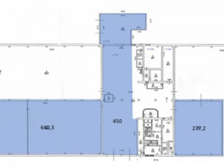
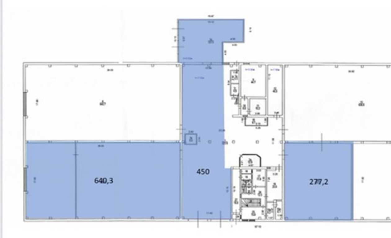
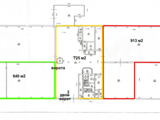
==ЛОТ 223439 == ОТ СОБСТВЕННИКА, БЕЗ КОМИССИИ. Сдаем производственно складское помещение, первый этаж. Ворота на нуле. Пропускной режим 24/7. Видео наблюдение по периметру площадки. Помещение с отоплением, отопление городское. Заезд на территорию платный. Первые 30 минут бесплатно. Возможно деление как на схеме. Территория не попадает под КРТ, что для сегодняшнего дня редкость. Эксплуатация оплачивается отдельно. Есть разные блоки от 277 м2. Схема прилагается.
Ступинский проезд, дом 1Ас3, Москва, Россия
Цена аренды:
1 471 500 руб./мес
Общая площадь:1 090 м²























