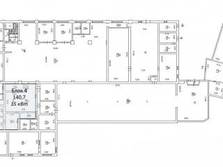
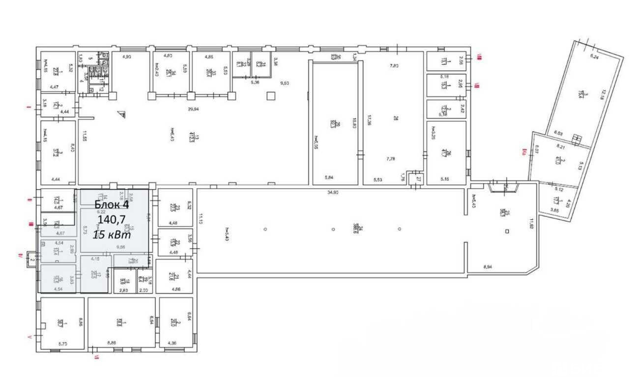
Аренда помещения свободного назначения, 141 м² , Дмитровское шоссе 58с33
Площадь: 141 м²
Цена аренды:
281 400 руб./мес
Цена:
1 996 руб./м²/мес

Дмитровское шоссе, дом
58с33,
Москва,
Россия
м. Верхние Лихоборы
Об объекте
- Этаж расположения помещения
- 1 этаж
- Административный округ
- Северный административный округ
Описание объекта
==ЛОТ 223446 == ОТ СОБСТВЕННИКА, БЕЗ КОМИССИИ. Предлагается в аренду производственное помещение на 1 этаже. Прямой договор с собственником. Предоставляются арендные каникулы. Подходит под склад, сервисное обслуживание автомобилей, производство, мастерская.
Дмитровское шоссе, дом 58с33, Москва, Россия
Цена аренды:
281 400 руб./мес
Общая площадь:141 м²

















