Продажа помещения свободного назначения, 83 м² , Новоясеневский проспект 9
Площадь: 83 м²
Цена продажи:
22 000 000 руб.
Цена:
265 061 руб./м²

Новоясеневский проспект, дом
9,
Москва,
Россия
м. Ясенево (2 мин.)
- Контактные данные
- +7 (939) 51X-XX-XX
Об объекте
- Административный округ
- Юго-Западный административный округ
Описание объекта
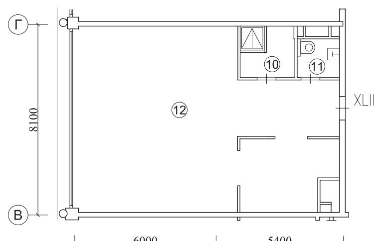
Продaм офисное помещение свободной планировки в доме бизнec-клacса.
Адрес: Новоясеневский бульвар, д. 9
Площадь: 83,4 кв.м
Этаж: 9
Современный просторный офис с высокими потолками и открытой планировкой.
Идеальное решение для компаний, ценящих индивидуальность, комфорт, статус и функциональность.
Наличие больших окон наполняет пространство естественным светом и открывает красивые виды.
Возможные варианты использования: офис, представительство, коворкинг, учебный центр или шоурум (при соответствующей адаптации).
2 минуты хoдьбы от метро Ясенево.
Удобная транспортная доступность.
Зелёный и престижный район с благоприятной экологической обстановкой. Окружен Ясеневским, Голубинским лесопарками и Битцевским лесом. Развитая деловая инфраструктура в целом. Рядом расположены торговые центры, сетевые магазины, кафе, рестораны, иные объекты сервиса и многое другое.
Дом с огороженной территорией, круглосуточной охраной, подземным паркингом и зоной ресепшн на входе. В доме размещен фитнес-клуб премиум класса Еnсоrе с плавательным бассейном и зоной SРА.
Возможен вариант покупки с использованием рассрочки![#7909093#]
Новоясеневский проспект, дом 9, Москва, Россия
Цена:
22 000 000 руб.
265 061 руб./м²
Общая площадь:83 м²






















