Аренда помещения свободного назначения, 327 м² , Каланчёвский тупик 3-5с1
Площадь: 327 м²
Цена аренды:
950 000 руб./мес
Цена:
2 906 руб./м²/мес

Каланчёвский тупик, дом
3-5с1,
Москва,
Россия
м. Комсомольская (4 мин.)
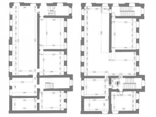
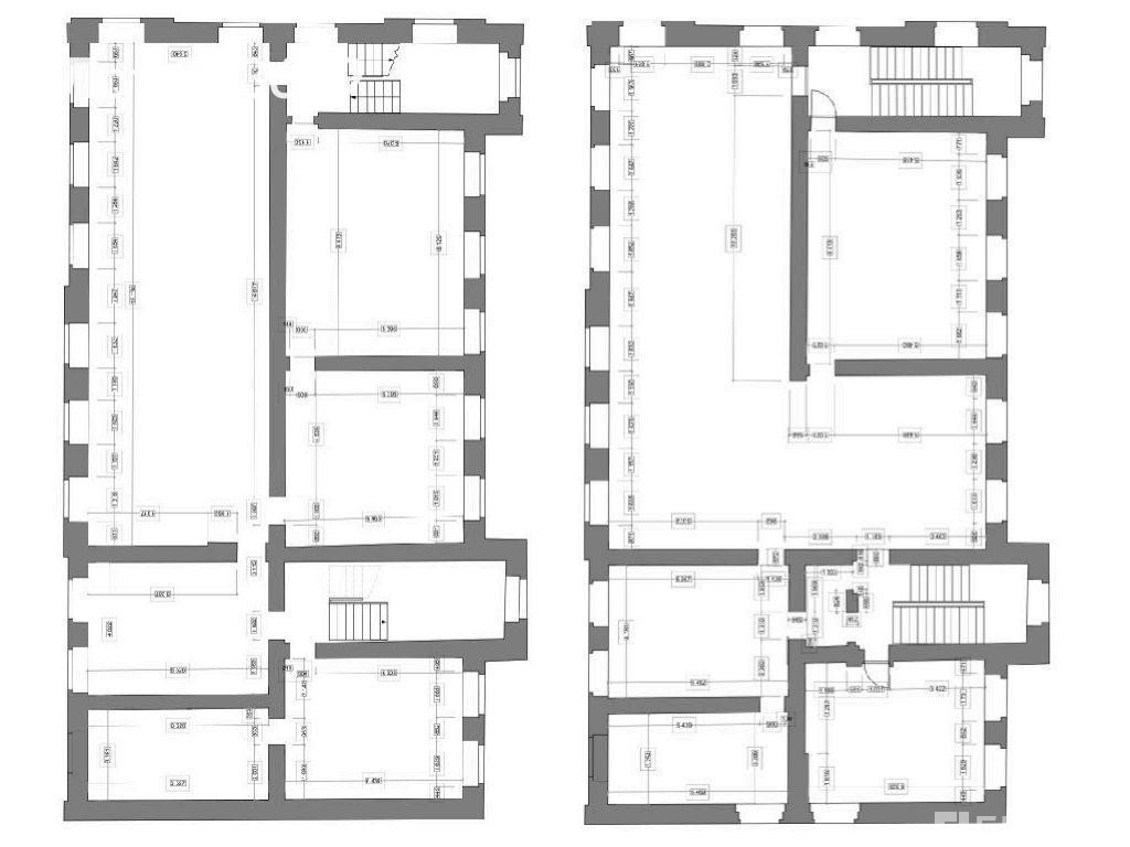
Об объекте
- Этаж расположения помещения
- 2 этаж
- Административный округ
- Центральный административный округ
Описание объекта
==ЛОТ 223649 == ОТ СОБСТВЕННИКА, БЕЗ КОМИССИИ. Офисный особняк класса В+. Сдается в аренду второй этаж - 327 кв. м. Расположенный в районе Красносельский, Центрального округа Москвы. В шаговой доступности находятся станции метро Комсомольская и Красные ворота. Транспортную доступность обеспечивает близость Садового кольца. Предусмотрена наземная парковка на огороженной территории на весь особняк - 10 м/м. В здании сделан качественный дизайнерский ремонт, смешанная планировка. Электрическая мощность на задание: 130 кВт. Высота потолков: 3. 2 метра. Ставка при аренде второго этажа: 950 000 рублей в месяц, коммуналка отдельно.
Каланчёвский тупик, дом 3-5с1, Москва, Россия
Цена аренды:
950 000 руб./мес
Общая площадь:327 м²
























