Аренда офиса, 5 м² , Алтуфьевское шоссе 13к5
Площадь: 5 м²
Цена аренды:
12 000 руб./мес
Цена:
2 400 руб./м²/мес

Алтуфьевское шоссе, дом
13к5,
Москва,
Россия
м. Окружная (10 мин.)
- Контактные данные
- +7 (933) 40X-XX-XX
Об объекте
- Административный округ
- Северо-Восточный административный округ
Описание объекта
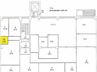
Помещение, площадью 4,96 м2, на 2 этаже 5-этажного бизнес-центра класса B, в 15 мин. пешком от м. Окружная, район города - Отрадное. Номер налоговой объекта - 15, предоставляется юридический адрес. Высота потолков: 3 м. Помещение предоставляется в прямую аренду, срок аренды - любой, с предоплатой за 1 месяц. Включено в ставку: коммунальные платежи, эксплуатационные расходы. Минимальный срок аренды 11 мес. Помещение со стандартной отделкой, комнат в аренду - 1, внутри кабинетная планировка, на полу ковролин. Помещение расположено в Бизнес-центре "Pilot House (Пайлот Хаус)", общая площадь здания 2904 м2, располагается на участке 2203 га, участок находится в аренде, здание полностью функционирует, обслуживает здание управляющая компания ООО "Пилот ЛТД", доступ в здание осуществляется по пропускам, доступ в здание круглосуточный.
Вход в помещение - общий с улицы. В здании есть охрана, местное кондиционирование, вентиляция - приточная, центральное отопление, гидрантная система пожаротушения. Парковка автомобилей - наземная.[#7928420#]
Алтуфьевское шоссе, дом 13к5, Москва, Россия
Цена аренды:
12 000 руб./мес
Общая площадь:5 м²









