Продажа помещения свободного назначения, 104 м² , улица Василия Ощепкова 1
Площадь: 104 м²
Цена продажи:
26 100 000 руб.
Цена:
250 962 руб./м²

улица Василия Ощепкова, дом
1,
Москва,
Россия
м. Коммунарка (12 мин.),
м. Ольховая (25.5 мин.),
м. Бунинская аллея (57 мин.)
- Контактные данные
- +7 (495) 02X-XX-XX
Об объекте
- Административный округ
- Новомосковский административный округ
Описание объекта
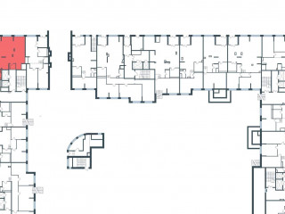
Предлагается коммерческое помещение площадью 104,4 м2 на 1-м этаже 15-этажного жилого дома в ЖК «Москвичка».
Основные преимущества:
отдельный вход;
место под вывеску;
витринное остекление;
круглосуточный доступ;
помещение без ремонта, что позволяет обустроить его по своему вкусу и требованиям бизнеса;
метро в пешей доступности - от 7 минут до м. Коммунарка;
помещение находится в жилом комплексе комфорт-класса;
развитый район с насыщенной инфраструктурой и активным пешеходным трафиком.
Технические характеристики: наличие всех необходимых коммуникаций - водоснабжение, канализация, электроснабжение.
Условия: помещение предоставляется без посредников, напрямую от собственника - компании «Аструм Недвижимость», которая управляет коммерческой инфраструктурой жилых комплексов ГК «Гранель».
ЖК «Москвичка» - это уютная локация, рассчитанная на проживание более 12 тысяч человек, большинство из которых - молодые и активные люди в возрасте от 20 до 50 лет. Уже сейчас в комплексе успешно работают множество бизнесов и якорные арендаторы. Среди них: продуктовые магазины, кафе, салоны красоты и другие предприятия сферы услуг.
Расположение комплекса в 700 метрах от станции метро «Коммунарка» обеспечивает отличный транспортный доступ, что позволяет жителям микрорайона добираться до центра столицы быстро и удобно. Весь микрорайон активно развивается и расширяется, создавая отличные перспективы для бизнеса.
Наши менеджеры помогут вам подобрать наиболее подходящее помещение для вашего бизнеса. Звоните и узнайте подробности![#7113540#]
улица Василия Ощепкова, дом 1, Москва, Россия
Цена:
26 100 000 руб.
250 962 руб./м²
Общая площадь:104 м²














