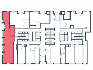
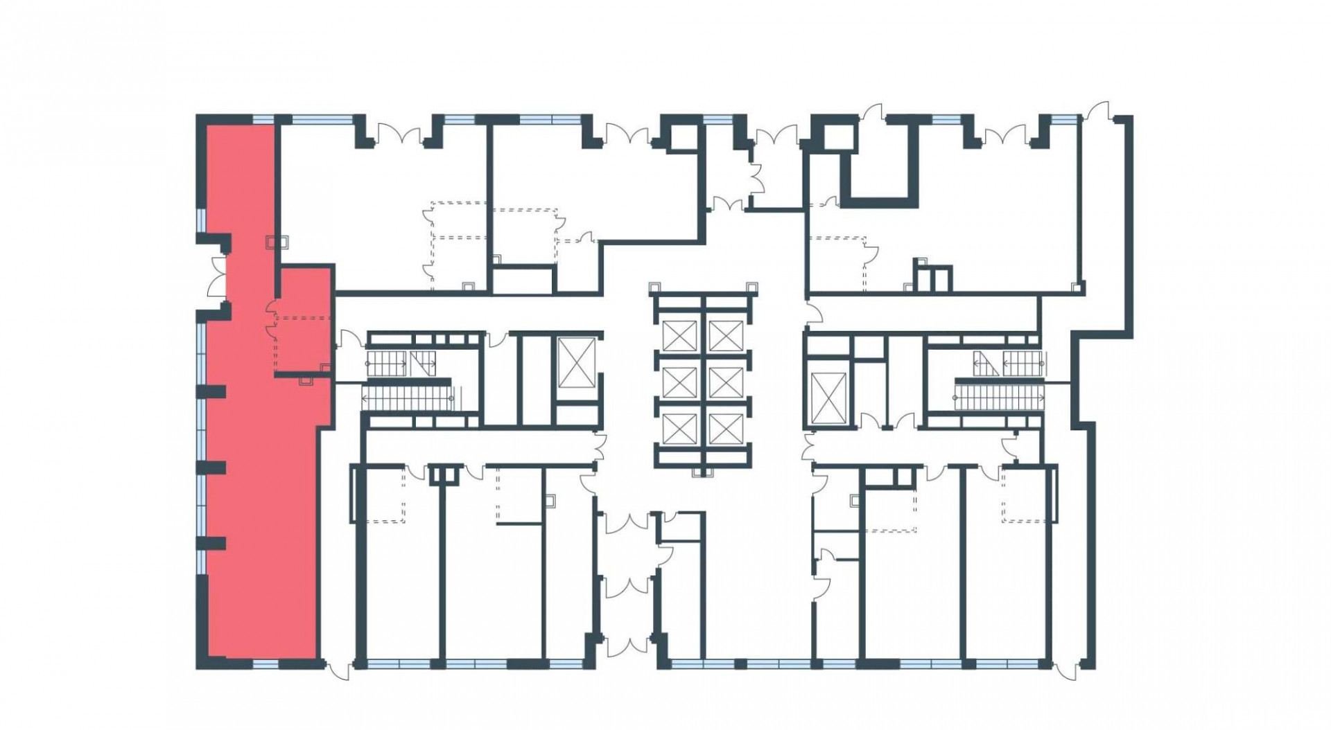
Аренда помещения свободного назначения, 89 м² , Шарикоподшипниковская улица 11с1
Площадь: 89 м²
Цена аренды:
401 850 руб./мес
Цена:
4 516 руб./м²/мес

Шарикоподшипниковская улица, дом
11с1,
Москва,
Россия
м. Дубровка (3 мин.)
- Контактные данные
- +7 (495) 02X-XX-XX
Об объекте
- Административный округ
- Юго-Восточный административный округ
Описание объекта
Сдаётся в аренду коммерческое помещение площадью 89,3 мна 1-м этаже жилого дома в ЖК «MYPRIORITY Дубровка».
Основные преимущества:
Отдельный вход;
Место под вывеску;
Витринное остекление;
Арендные каникулы;
Помещение без ремонта, что позволяет обустроить его по своему вкусу и требованиям бизнеса;
Наличие коммуникаций: водоснабжения, канализации, электроснабжения, отопления;
Помещение находится в новом жилом комплексе бизнес-класса;
Метро в пешей доступности;
Развитый район с насыщенной инфраструктурой и активным пешеходным трафиком.
Технические характеристики: наличие всех необходимых коммуникаций: водоснабжение, канализация, электроснабжение. Выделенная мощность -17,9 кВт.
Условия: помещение предоставляется без посредников, напрямую от собственника - компании «Аструм Недвижимость», которая управляет коммерческой инфраструктурой жилых комплексов ГК «Гранель».
ЖК «MYPRIORITY Дубровка» расположен в ЮВАО Москвы, в шаговой доступности от метро «Дубровка». Это перспективное место для открытия бизнеса благодаря высокой транспортной доступности (рядом ТТК, станции метро и МЦК) и плотной жилой застройке. Комплекс сочетает современные архитектурные решения от бюро T+T Architects с динамичной урбанистической средой, что привлекает внимание как местных жителей, так и посетителей.
На первых этажах комплекса представлены коммерческие помещения площадью от 26 до 302 кв. м. Каждое помещение имеет отдельный вход, витринное остекление и возможность гибкой планировки. Здесь можно открыть супермаркет, кафе, офис, магазин или предприятие сферы услуг. Высокий пешеходный трафик обеспечивается благодаря близости жилого комплекса и будущего крупного общественно-делового квартала.
«MYPRIORITY Дубровка» - это не только комфортное место для жизни, но и отличная площадка для развития бизнеса.
Наши менеджеры помогут вам подобрать наиболее подходящее помещение для вашего бизнеса. Звоните и узнайте подробности.[#7325289#]
Шарикоподшипниковская улица, дом 11с1, Москва, Россия
Цена аренды:
401 850 руб./мес
Общая площадь:89 м²













