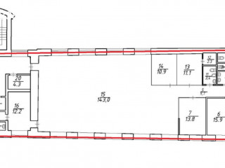
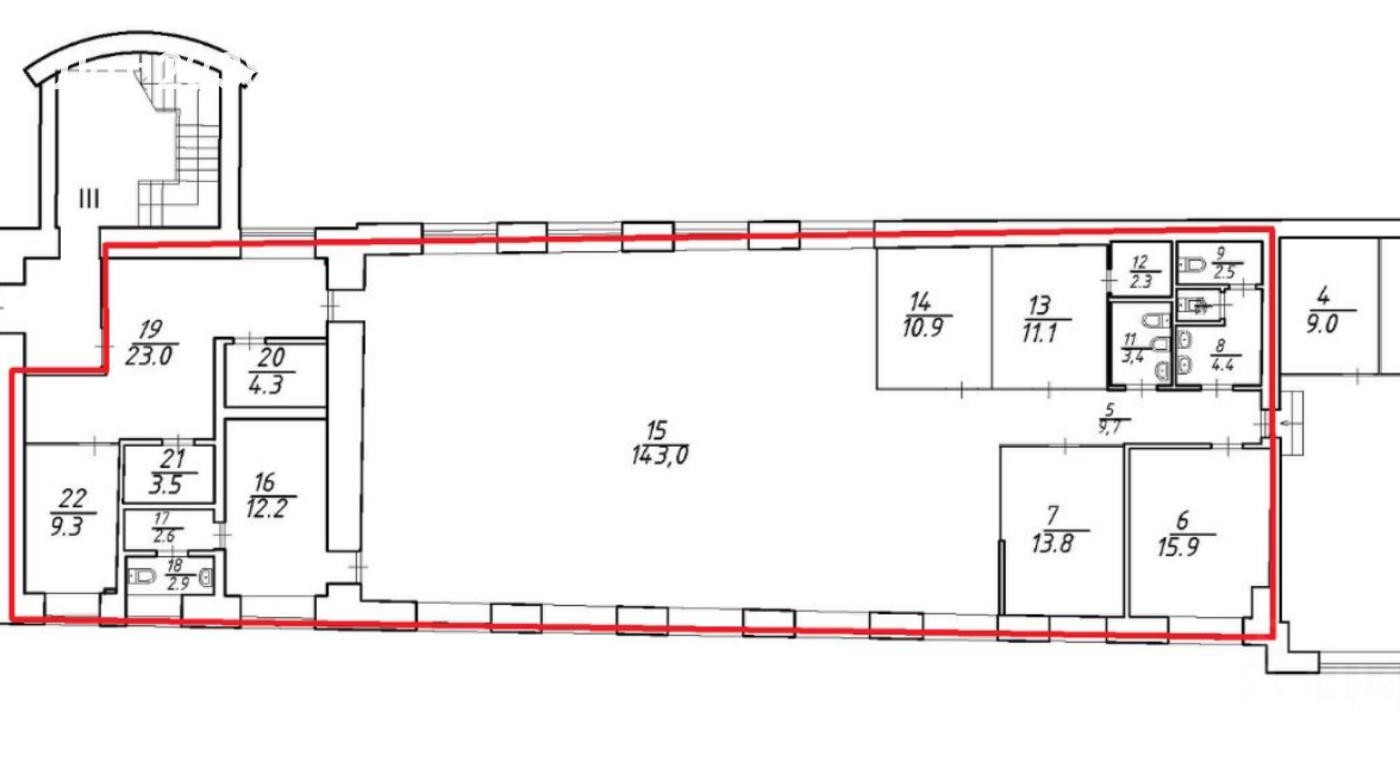
Аренда офиса, 275 м² , Воронцовская улица 20
Площадь: 275 м²
Цена аренды:
840 275 руб./мес
Цена:
3 056 руб./м²/мес

Воронцовская улица, дом
20,
Москва,
Россия
м. Таганская (4 мин.)
Об объекте
- Этаж расположения помещения
- 2 этаж
- Административный округ
- Центральный административный округ
Описание объекта
==ЛОТ 223871 == ОТ СОБСТВЕННИКА, БЕЗ КОМИССИИ. Предлагается в аренду офисное помещение, расположенное в престижном районе с высокой проходимостью. Объект находится в непосредственной близости от станций метро "Таганская" и "Марксистская", что обеспечивает удобную транспортную доступность. Помещение расположено на первой линии по улице Воронцовская.Планировка помещения смешанная, что позволяет гибко использовать пространство в соответствии с потребностями арендатора. В дополнение к аренде предоставляется юридический адрес объекта.Освобождение с
Воронцовская улица, дом 20, Москва, Россия
Цена аренды:
840 275 руб./мес
Общая площадь:275 м²









