Аренда офиса, 275 м² , улица Обручева 52с3
Площадь: 275 м²
Цена аренды:
458 750 руб./мес
Цена:
1 669 руб./м²/мес

улица Обручева, дом
52с3,
Москва,
Россия
Об объекте
- Этаж расположения помещения
- 2 этаж
- Административный округ
- Юго-Западный административный округ
Описание объекта
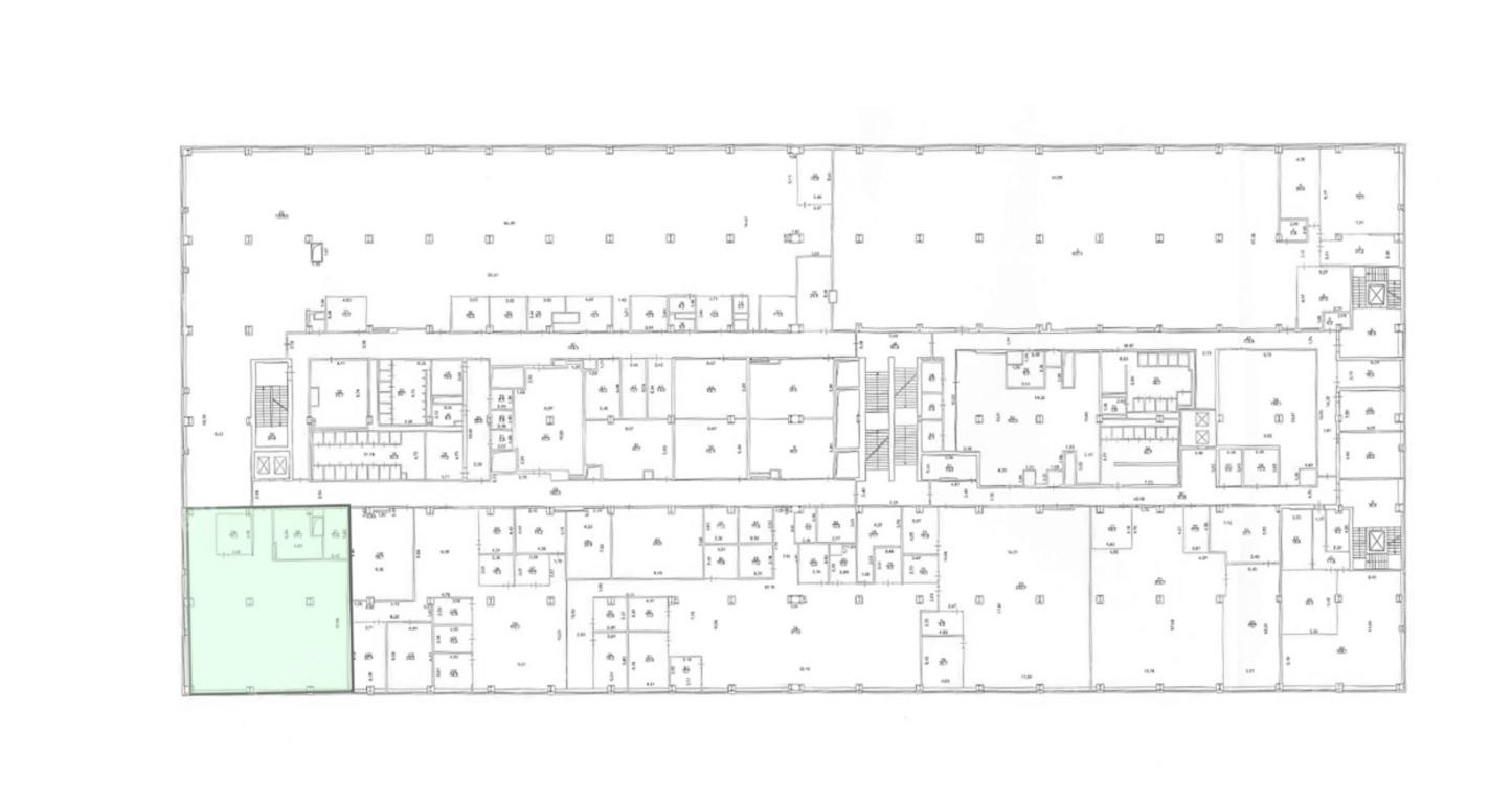
==ЛОТ 223894 == ОТ СОБСТВЕННИКА, БЕЗ КОМИССИИ. Предлагается в аренду офисное помещение общей площадью 275 квадратных метра, расположенное на 2 этаже бизнес-центра класса B+ "РТС Обручева". Объект находится в непосредственной близости от станции метро "Зюзино", до которой можно добраться пешком за 12 минут. Планировка помещения смешанная.
улица Обручева, дом 52с3, Москва, Россия
Цена аренды:
458 750 руб./мес
Общая площадь:275 м²









