Аренда помещения свободного назначения, 71 м² , Ленинградский проспект 36с30
Площадь: 71 м²
Цена аренды:
476 000 руб./мес
Цена:
6 705 руб./м²/мес

Ленинградский проспект, дом
36с30,
Москва,
Россия
м. Динамо
- Контактные данные
- +7 (495) 01X-XX-XX
Об объекте
- Административный округ
- Северный административный округ
Описание объекта
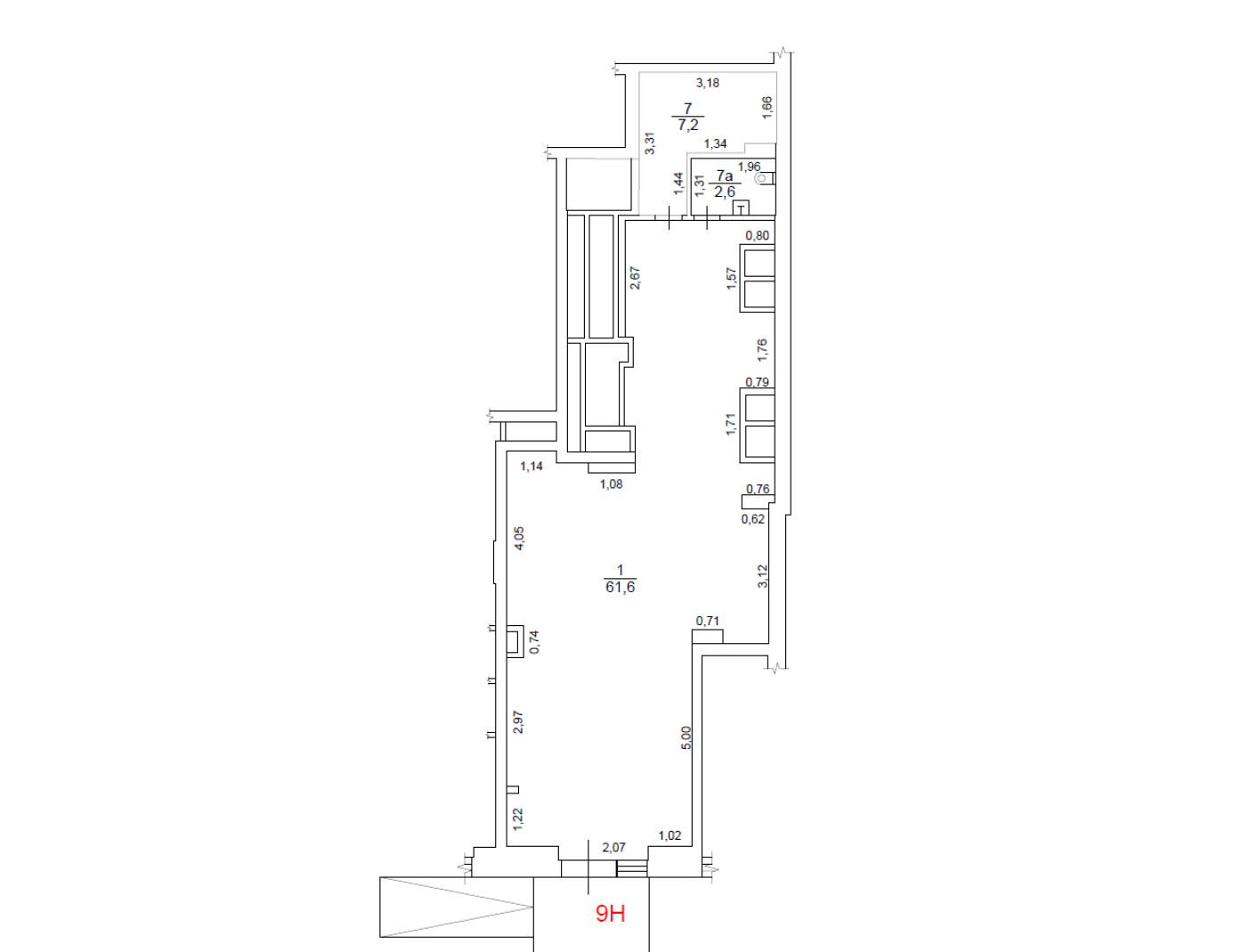
Уникальное предложение по продаже коммерческой недвижимости в центре Москвы!
Помещение свободного назначения площадью 71,4 м2 располагается в городском квартале премиум-класса «ВТБ Арена Парк».
Рядом находятся две станции метро: «Динамо» и «Петровский парк» в 7-10 минутах пешком.
Удобный заезд с Ленинградского проспекта и ТТК.[#7959118#]
Ленинградский проспект, дом 36с30, Москва, Россия
Цена аренды:
476 000 руб./мес
Общая площадь:71 м²








