Аренда помещения свободного назначения, 305 м² , улица Бориса Галушкина 26
Площадь: 305 м²
Цена аренды:
610 000 руб./мес
Цена:
2 000 руб./м²/мес

улица Бориса Галушкина, дом
26,
Москва,
Россия
м. ВДНХ
Об объекте
- Этаж расположения помещения
- 1 этаж
- Административный округ
- Северо-Восточный административный округ
Описание объекта
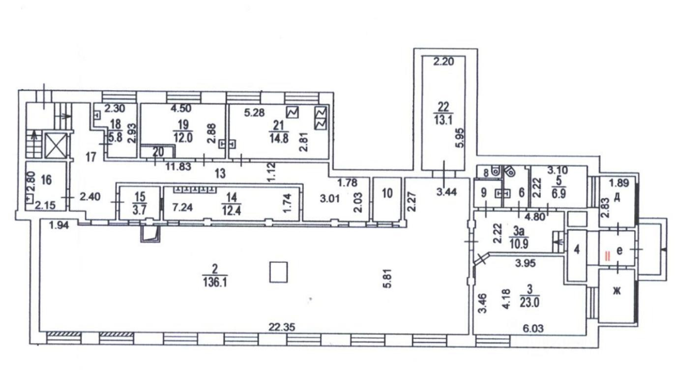
==ЛОТ 223979 == ОТ СОБСТВЕННИКА, БЕЗ КОМИССИИ. Сдается помещение свободного назначения, 265 м?
Привлекательное местоположение, 1 этаж жилого дома, два отдельных входа, бесплатная парковка. Потолок метра, вытяжка на крышу дома, 6 мокрых точек, плюс 2 санузла. Помещение колонного типа, несущие стены отсутствуют. Электрическая мощность 60 кВт. Прямая долгосрочная аренда от собственника.
Расположено в спальном районе, на пересечении улиц Бориса Галушкина, Павла Корчагина, Космонавтов и Рижского проезда, Хороший трафик, в 70 метрах находится Политехнический университет и колледж Современных технологий, напротив 2 остановки общественного транспорта, в непосредственный близости расположены несколько студенческих общежитий, вследствие чего мимо помещения проходит Студенческая тропа, напротив находится остановка общественного транспорта, 250 метров от парка Сокольники. УСН.
улица Бориса Галушкина, дом 26, Москва, Россия
Цена аренды:
610 000 руб./мес
Общая площадь:305 м²










