Аренда помещения свободного назначения, 232 м² , Тушинская улица 16с4
Площадь: 232 м²
Цена аренды:
800 000 руб./мес
Цена:
3 449 руб./м²/мес

Тушинская улица, дом
16с4,
Москва,
Россия
м. Тушинская (4 мин.)
Об объекте
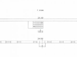
- Этаж расположения помещения
- 1 этаж
- Административный округ
- Северо-Западный административный округ
Описание объекта
==ЛОТ 223980 == ОТ СОБСТВЕННИКА, БЕЗ КОМИССИИ. Предлагаю вам уникальную возможность снять торговое помещение на Тушинской улице, расположенное на первом этаже административного здания. Площадь 123 кв. м в сочетании с цокольным этажом 109 кв. м обеспечивают отличную функциональность для ведения бизнеса. Пешеходный трафик до 5000 человек в час создаёт высокую видимость вашего бизнеса, а динамичная атмосфера района привлекает как местных жителей, так и туристов. Объект доступен для немедленного заселения с конца сентября. Вокруг расположены популярные кафе, рестораны, магазины и другие точки интереса, что делает это место идеальным для любой торговой или сервисной деятельности. Типовой ремонт позволит вам быстро переоборудовать помещение под ваши потребности.
Тушинская улица, дом 16с4, Москва, Россия
Цена аренды:
800 000 руб./мес
Общая площадь:232 м²











