Продажа офиса, 1728 м² , проспект Вернадского 92к1
Площадь: 1728 м²
Цена продажи:
600 000 000 руб.
Цена:
347 223 руб./м²

проспект Вернадского, дом
92к1,
Москва,
Россия
м. Тропарёво
- Контактные данные
- +7 (932) 50X-XX-XX
Об объекте
- Административный округ
- Западный административный округ
Описание объекта
Предложение, на которое стоит обратить Ваше внимание!
Прямая продажа от собственника!
Офис расположен в элитном ЖК "Корона Эйр" и имеет отдельный вход не только в
здание, но и на территорию ЖК.
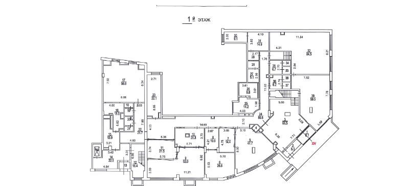
Двухэтажный офис общей площадью 1727,5 кв.м.
Высота потолков на первом этаже 3,6 м, на втором 3,2 м.
Помещение офиса оснащены всем необходимым для комфортной и полноценной работы
руководителей и сотрудников (кабинеты руководителей, приемные, кабинеты
сотрудников, зал совещаний, серверная, 8 уборных, кухня, комната приема пищи и т.д.).
Установлена система видеонаблюдения, вентиляция, кондиционирование.
Закрытая территория ЖК имеется две большие наземные парковки и подземный паркинг,
а также имеет собственный зоопарк, парк и водоем.
За офисом закреплено 10 машиномест на наземной парковке.[#7975695#]
проспект Вернадского, дом 92к1, Москва, Россия
Цена:
600 000 000 руб.
347 223 руб./м²
Общая площадь:1 728 м²





















