Продажа помещения свободного назначения, 80 м² , улица Поляны 5
Площадь: 80 м²
Цена продажи:
21 500 000 руб.
Цена:
268 750 руб./м²

улица Поляны, дом
5,
Москва,
Россия
м. Улица Скобелевская (11 мин.)
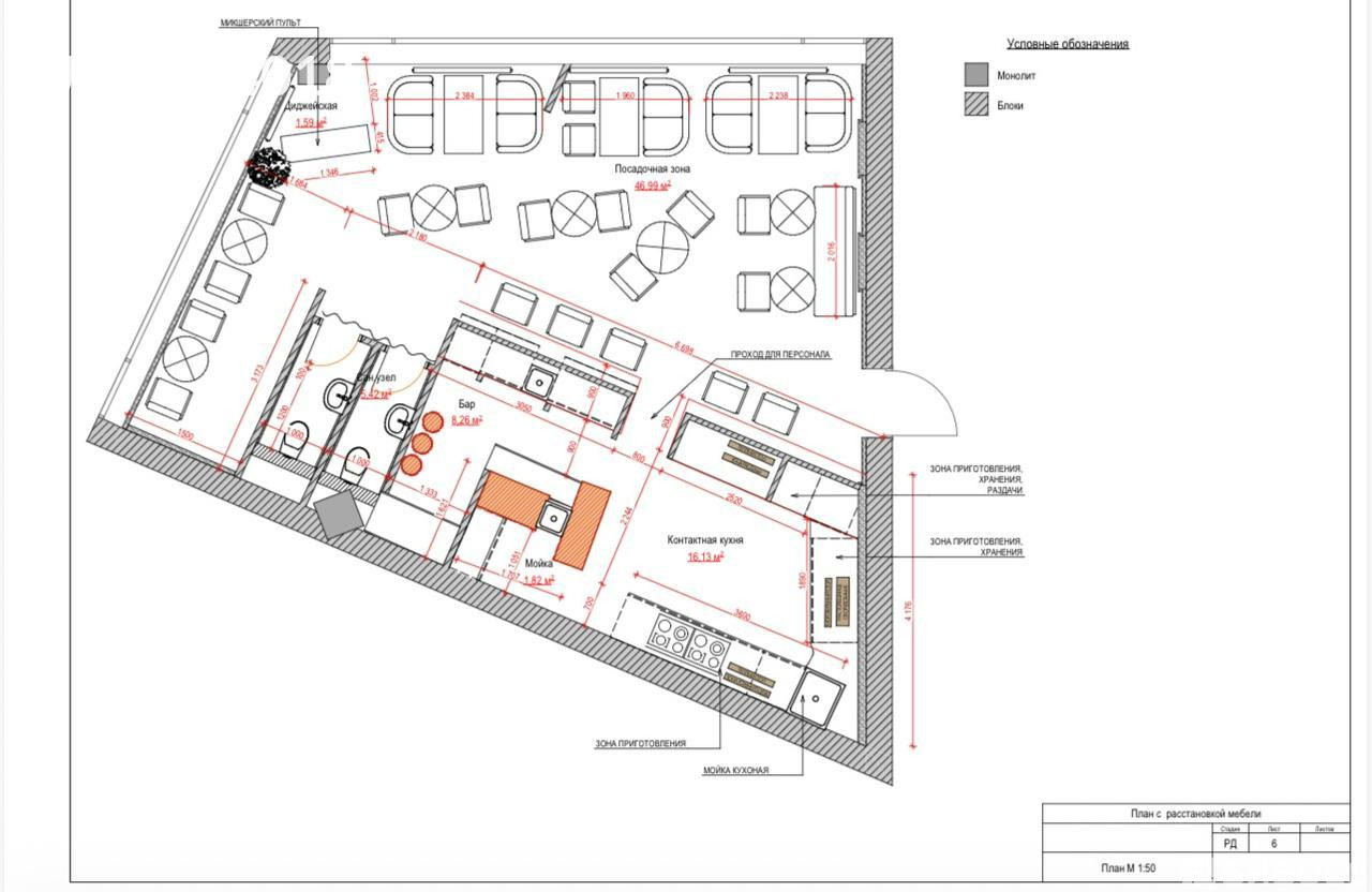
Об объекте
- Этаж расположения помещения
- 3 этаж
- Административный округ
- Юго-Западный административный округ
Описание объекта
==ЛОТ 224018 == ОТ СОБСТВЕННИКА, БЕЗ КОМИССИИ. Продаю новое помещение в элитном ЖК. Сделан дизайнерский ремонт под ресторан. Отлично подойдет под ГАБ.
Жилая площадь во всём ЖК скуплена, поток потенциальных клиентов огромный (первые три этажа всех шести башен соединены между собой, проходимость людей высокая, метро в шаговой доступности).
Звоните, для организации показа и дальнейшего сотрудничества!
ЭКСКЛЮЗИВ!!!
улица Поляны, дом 5, Москва, Россия
Цена:
21 500 000 руб.
268 750 руб./м²
Общая площадь:80 м²
















