Продажа офиса, 169 м² , МКАД, 64-й километр 1
Площадь: 169 м²
Цена продажи:
55 554 486 руб.
Цена:
328 725 руб./м²

МКАД, 64-й километр, дом
1,
Москва,
Россия
м. Строгино
- Контактные данные
- +7 (495) 10X-XX-XX
Об объекте
- Административный округ
- Северо-Западный административный округ
Описание объекта
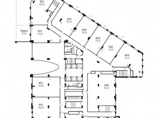
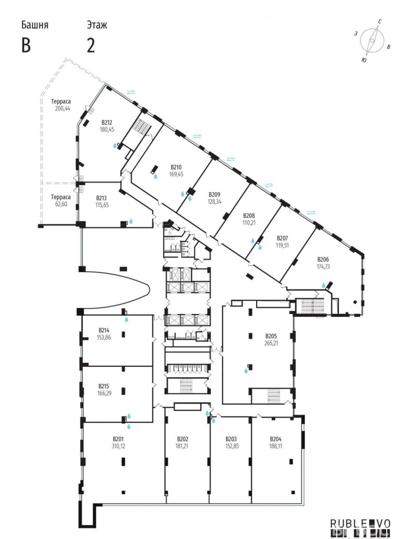
ОФИС В БАШНЕ B | RUBLEVO BUSINESS PARK
Класс А | Победитель премии Move Realty Awards в номинации «Лучший проект для инвестиций»
Инвестируйте в офис с максимальным потенциалом роста - в новом бизнес-центре Rublevo Business Park. Современный проект А-класса на Новорижском направлении: высокий спрос, редкие форматы, идеальная транспортная доступность.
Преимущества объекта
Свободная планировка от 50 до 4000 м - возможность адаптации под любые задачи бизнеса.
Высота потолков от 4,05 до 6,03 м - создаёт ощущение простора, идеально для открытых пространств, шоурумов и двухуровневых решений.
Частные террасы - уникальный формат на офисном рынке Москвы.
Панорамное угловое остекление - естественный свет в течение всего дня и впечатляющие виды.
Shell & Core - гибкость в проектировании интерьера под себя.
Архитектура и инженерия
Класс А - соответствие высоким стандартам по инфраструктуре, инженерным системам и управлению зданием.
Гранд-лобби 1500 м, высота 9 м - знаковое пространство с интерьерами от бюро UNK corporate interiors.
22 скоростных лифта - бесшумные и быстрые, рассчитаны на интенсивный трафик.
Современные инженерные системы - высокий уровень комфорта и энергоэффективности.
Локация и транспорт
2 минуты до Новорижского шоссе и проспекта Маршала Жукова - быстрый выезд на ключевые магистрали.
8 минут до м. Строгино, 500 м до будущей м. Липовая роща (открытие до 2027 года) - отличная доступность как на авто, так и на общественном транспорте.
Условия покупки
Продажа по ДДУ (214-ФЗ) через эскроу-счета
Проектное финансирование от Сбербанка
Возможна рассрочка
Возврат НДС 22%
Инвестиционная привлекательность
Ожидаемый рост капитализации с открытием метро
Возможность сдачи по блокам или этажом целиком
ROI: 9-12%
________________________________________
Адрес объекта: МКАД, 64 км[#7512242#]
МКАД, 64-й километр, дом 1, Москва, Россия
Цена:
55 554 486 руб.
328 725 руб./м²
Общая площадь:169 м²



















