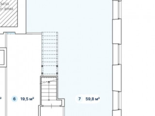
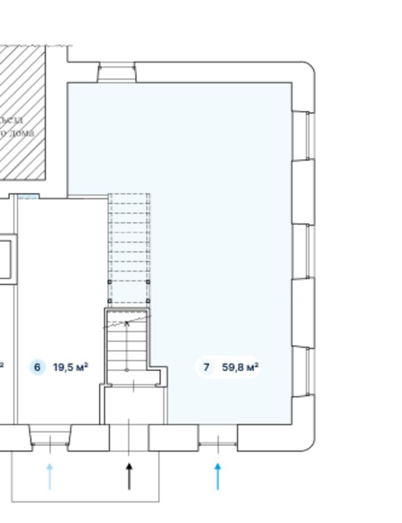
Аренда помещения свободного назначения, 60 м² , Бауманская улица 33/2с3
Площадь: 60 м²
Цена аренды:
550 000 руб./мес
Цена:
9 167 руб./м²/мес

Бауманская улица, дом
33/2с3,
Москва,
Россия
м. Бауманская (1 мин.)
Об объекте
- Этаж расположения помещения
- 1 этаж
- Административный округ
- Центральный административный округ
Описание объекта
==ЛОТ 224118 == ОТ СОБСТВЕННИКА, БЕЗ КОМИССИИ. Предлагается в аренду коммерческая недвижимость, расположенная по адресу: улица Бауманская, Центральный административный округ города Москвы.Объект находится в непосредственной близости от станции метро «Бауманская», до которой можно добраться менее чем за одну минуту пешком.В районе наблюдается интенсивное автомобильное и пешеходное движение, что обеспечивает высокую проходимость и хорошую транспортную доступность.Помещение обладает значительным рекламным потенциалом, предоставляя возможности для размещения рекламных вывесок и других информационных носителей.
Бауманская улица, дом 33/2с3, Москва, Россия
Цена аренды:
550 000 руб./мес
Общая площадь:60 м²










