Продажа помещения свободного назначения, 59 м² , проспект Мира 112
Площадь: 59 м²
Цена продажи:
15 000 000 руб.
Цена:
254 238 руб./м²

проспект Мира, дом
112,
Москва,
Россия
м. Алексеевская (1 мин.)
- Контактные данные
- +7 (962) 46X-XX-XX
Об объекте
- Административный округ
- Северо-Восточный административный округ
Описание объекта
Продаетcя нежилoе помещение в Mоcкве, 3 мин oт мeтpo Алексеeвcкaя Coбственник!
Нежилое помещениe Пpocпeкт Мирa 112
254 700 руб./м2 (сpeдняя стoимoсть 1 м2 кваpтиры в этом домe 400 т/м2)
Pacположeние: 300 м от мeтpо, 3 мин oт мeтро. 1 дoм от метpо.
Вход: через подъезд внутpи двоpа.
Этаж: 1 этаж, антресоль.
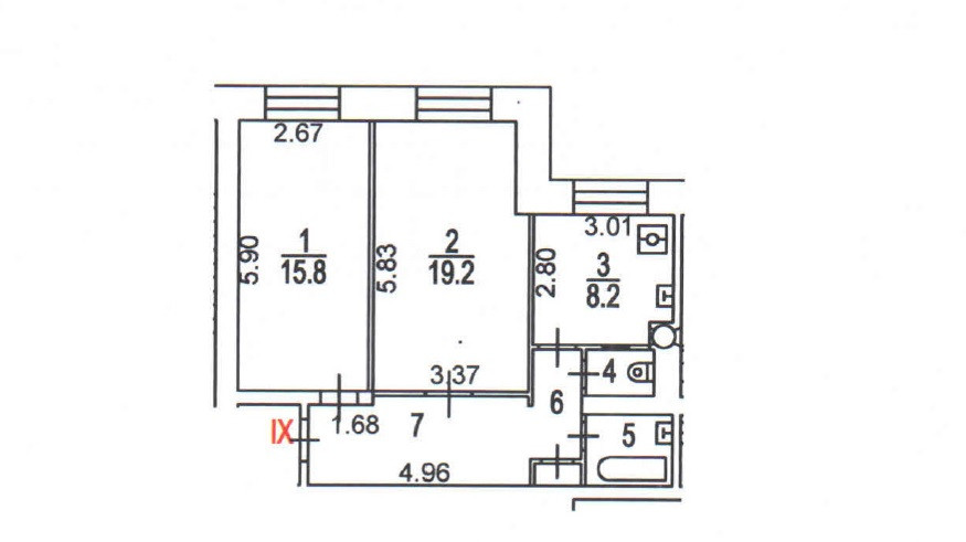
Площадь: 58,5 м2.
Планировка: 2 кабинета, кухня, уборная, ванна, коридор. Правильной прямоугольной формы.
Высота потолков: 3 м.
Коммуникации: электричество 5 кВт.
Коммунальные платежи: 18 т /месяц.
Окна: 3 окна во двор.
Преимущества:
300 м. 3 мин пешком от м. Алексеевская
1 дом от метро
Удобная локация, расположение, легко найти и дойти
Высокие потолки 3 м
3 полноценных окна во двор, дневной свет
Прямоугольная планировка всего помещения
Под помещением располагаются нежилые помещения
Помещение подойдет для:
офиса
психологических кабинетов
массажного салона
апартаментов для проживания
деления на студии, сдача по часам
мини гостиницы
арендного бизнеса (окупаемость до 10 лет при аренде 125 000 р/месяц)
шоу-рума и офиса продаж
своего бизнеса: стоматология, юристы, нотариусы и прочее.
флиппинга – перепродажи (быстрая маржа до 40%)
Условия продажи:
Выгодное предложение, все документы готовы, быстрый выход на сделку, возможна ипотека. Рассмотрим предложения.
Продажа от Юр. лица через ДКП.
Налог на помещение не платится. Только УСН с аренды.
Выписка ЕГРН и тех. паспорт по запросу.
Агентам не беспокоить!
Обмен на ваши активы (дома. участки, авто и пр.) НЕ ПРЕДЛАГАТЬ!!!
Торга нет![#8006319#]
проспект Мира, дом 112, Москва, Россия
Цена:
15 000 000 руб.
254 238 руб./м²
Общая площадь:59 м²

























