Аренда помещения свободного назначения, 123 м² , улица Самуила Маршака 18
Площадь: 123 м²
Цена аренды:
307 500 руб./мес
Цена:
2 500 руб./м²/мес

улица Самуила Маршака, дом
18,
Москва,
Россия
м. Рассказовка (5 мин.)
- Контактные данные
- +7 (985) 32X-XX-XX
Об объекте
- Административный округ
- Новомосковский административный округ
Описание объекта
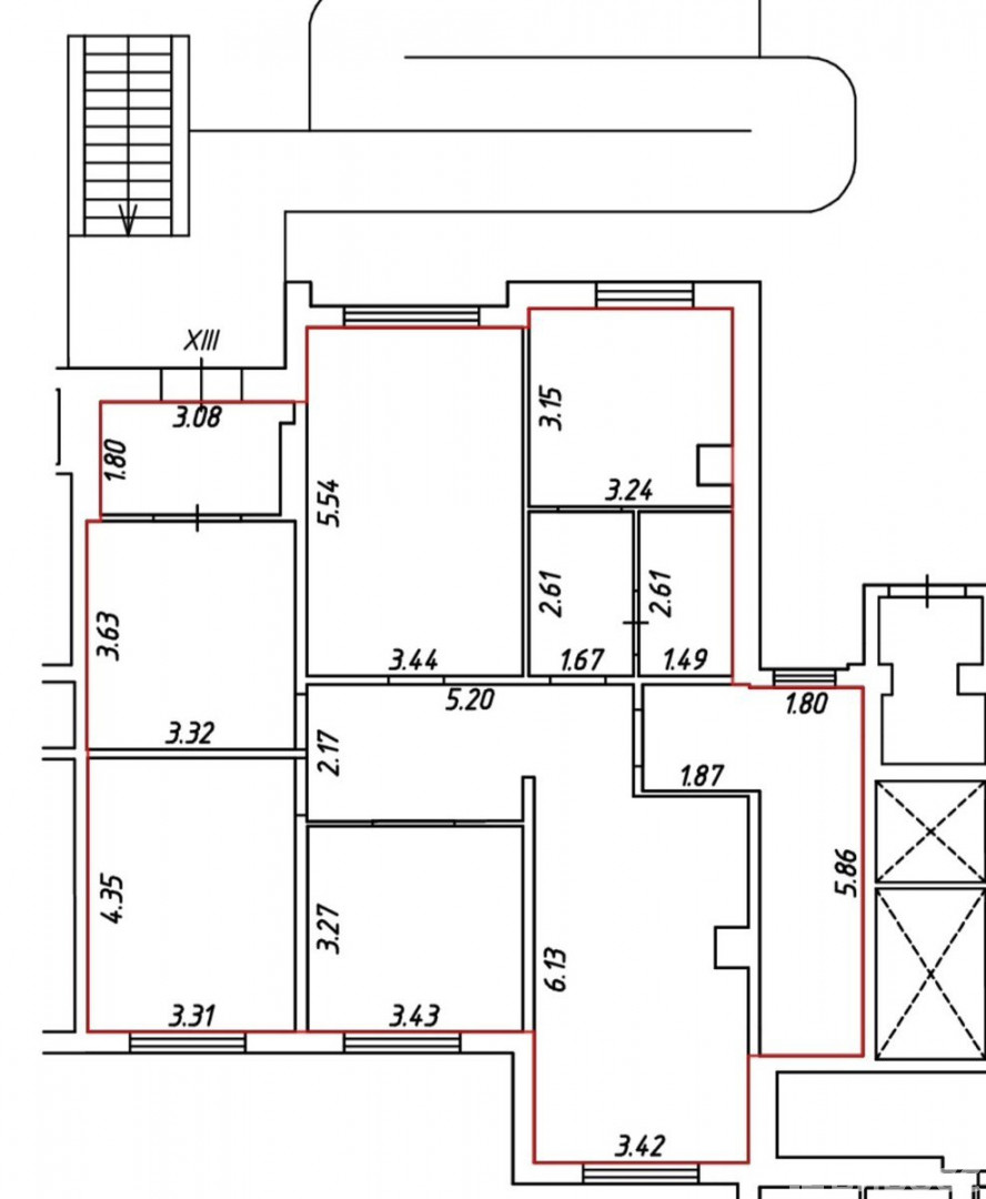
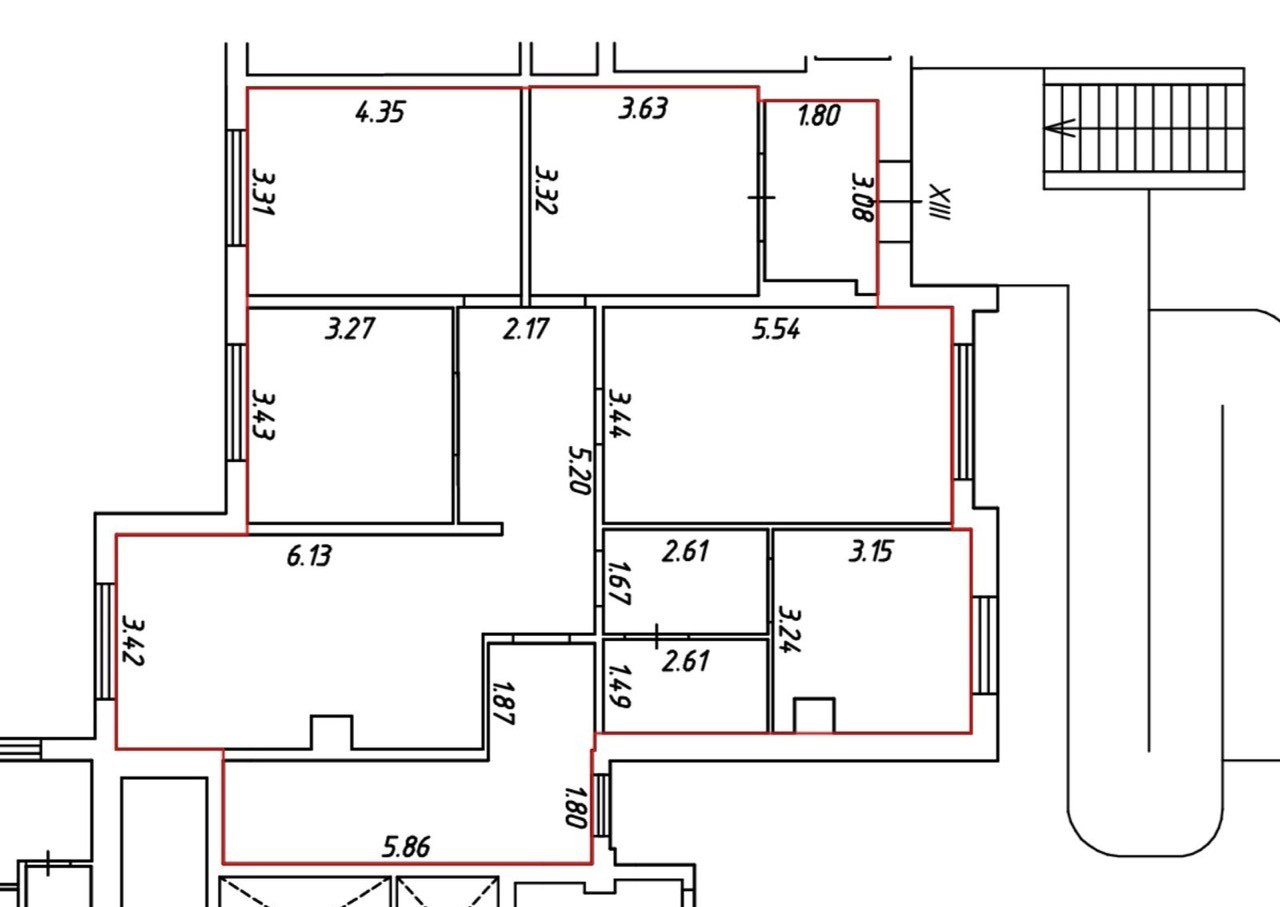
Помещение 123 м2 в точке высокого пешеходного трафика.
Помещение идеально подходит для пункта выдачи Ozon, но также будет отличным выбором для клиники, салона красоты, магазина или учебного центра.
Два варианта использования для вашего бизнеса:
1. ПОЛНАЯ АРЕНДА: Вы используете все 123 м2 для своего бизнеса, получая просторное помещение с 5 кабинетами и зоной ресепшен.
2. АРЕНДА + СУБАРЕНДА: Вы занимаете необходимую вам площадь, а остальные кабинеты (оборудованы мокрыми точками) сдаете в субаренду. Это позволяет значительно сократить ваши ежемесячные расходы на аренду.
Помещение готово к запуску ПВЗ OZON:
ЗНАК КАЧЕСТВА: Помещение в отличном состоянии после предыдущего арендатора, стоматологической клиники.
ОДОБРЕННАЯ ЛОКАЦИЯ: Адрес находится в "синей" зоне на карте Ozon, где компания рекомендует открывать новые пункты.
БЕЗБАРЬЕРНЫЙ ДОСТУП: Входная группа уже оборудована пандусом.
МОЩНОСТЬ: Выделено 15 кВт электроэнергии. Хватит на все освещение, вывеску, компьютеры и видеонаблюдение.
ПРАВИЛЬНЫЙ ЭТАЖ И ПОТОЛКИ: Первый этаж. Высота потолков 2.8 м, что создает ощущение простора и соответствует стандартам ozon.
1 неделя арендных каникул на заезд и обустройство по брендбуку.
Почему ваш пункт выдачи здесь будет успешным?
ТРАФИК (ГЛАВНОЕ ПРЕИМУЩЕСТВО!):
Помещение находится в центре притяжения жителей. Дом находится на пути жителей двора от метро до дома. Рядом уже работают и генерируют постоянный поток людей Wildberries, кофейня, детский центр и продуктовый магазин. Ваш бизнес станет частью их маршрута.
ЛУЧШАЯ ЦЕНА В РАЙОНЕ: 2500 р за м2, у соседей по району от 3000 .
Технические и коммерческие условия:
- Площадь: 123 м2
- Планировка: зона ресепшен, 5 кабинетов с мокрыми точками, кухня, с/у.
- Вход: отдельный со стороны ул. Самуила Маршака
- Каникулы: 1 неделя на заезд и подготовку к открытию.
- Коммунальные платежи: оплачиваются отдельно.
- Обеспечительный платеж: 1 месяц.
Помещение свободно и готово к показу. Звоните, чтобы договориться о просмотре!
Добавьте объявление в ИЗБРАННОЕ, чтобы не потерять.[#8011378#]
улица Самуила Маршака, дом 18, Москва, Россия
Цена аренды:
307 500 руб./мес
Общая площадь:123 м²











