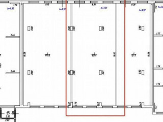
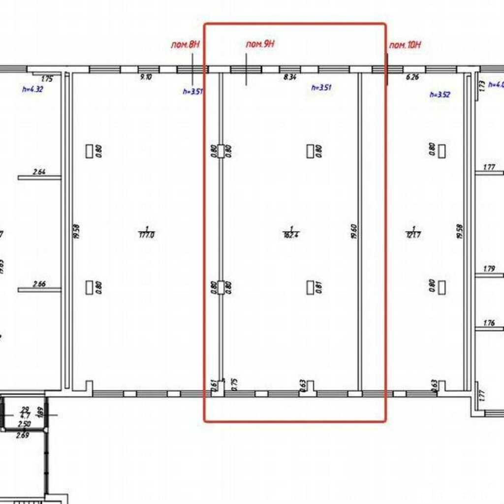
Аренда помещения свободного назначения, 162 м² , Большая Филёвская улица 3к4
Площадь: 162 м²
Цена аренды:
1 200 000 руб./мес
Цена:
7 408 руб./м²/мес

Большая Филёвская улица, дом
3к4,
Москва,
Россия
м. Фили (4 мин.)
Об объекте
- Этаж расположения помещения
- 1 этаж
- Административный округ
- Западный административный округ
Описание объекта
==ЛОТ 224219 == ОТ СОБСТВЕННИКА, БЕЗ КОМИССИИ. Сдаётся помещение свободного назначения, 162м. Пешеходный и автомобильный траффик. Престижная локация (зао г. Москвы). На пешеходном маршруте от ст. М. Фили (250 м. ) к жк и бц Порта (класс А+, окончание строительства в 2025 г. ). Первая линия улицы. Большая вывеска. Отличная видимость. В жк 2, 800 квартир, мало коммерческих помещений. Большой спрос. Нежилое помещение в одноэтажной пристройке. Нет квартир над помещением. Витражные витрины. Правильная форма. Помещение частично сдано в аренду на коротких договорах. После окончания строительства БЦ "Порт" стоимость аренды ещё сильно повысится. Собственность от юрлица.
Большая Филёвская улица, дом 3к4, Москва, Россия
Цена аренды:
1 200 000 руб./мес
Общая площадь:162 м²














