Аренда помещения свободного назначения, 1000 м² , улица Хамовнический Вал 34
Площадь: 1000 м²
Цена аренды:
3 000 000 руб./мес
Цена:
3 000 руб./м²/мес

улица Хамовнический Вал, дом
34,
Москва,
Россия
м. Спортивная (2 мин.)
Об объекте
- Этаж расположения помещения
- 1 этаж
- Административный округ
- Центральный административный округ
Описание объекта
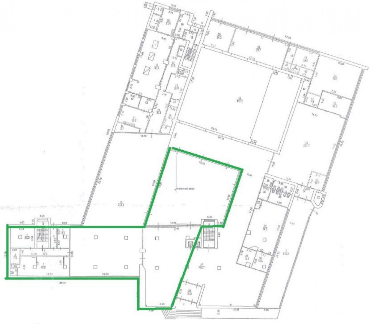
==ЛОТ 224300 == ОТ СОБСТВЕННИКА, БЕЗ КОМИССИИ. В здании гостиницы Юность предлагается в аренду площадь 1000 м2 под ресторан - кухня (с подвалом), лобби-бар, ресторан, внутренний двор, веранда, помещение на 2м этаже. Помещение имеет несколько отдельных входов. Отличная локация, постоянный трафик как от метро Спортивная (2 минуты), так и проживающих в этой гостинице. Высокие потолки, наличие мокрых точек, холодильные камеры.
улица Хамовнический Вал, дом 34, Москва, Россия
Цена аренды:
3 000 000 руб./мес
Общая площадь:1 000 м²












