Продажа помещения свободного назначения, 182 м² , переулок Красина 15с1
Площадь: 182 м²
Цена продажи:
39 900 000 руб.
Цена:
219 231 руб./м²

переулок Красина, дом
15с1,
Москва,
Россия
м. Маяковская (10 мин.)
Об объекте
- Этаж расположения помещения
- 1 этаж
- Административный округ
- Центральный административный округ
Описание объекта
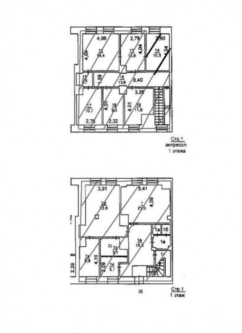
==ЛОТ 224323 == ОТ СОБСТВЕННИКА, БЕЗ КОМИССИИ. Продается помещение в центре города, в 10 минутах пешком от станции метро Маяковская - первый этаж с антресолью, фактически 2 полноценных этажа. Высота потолков 2,3 м. Имеется действующий арендатор, МАП 425 000, окупаемость менее 8 лет. Рядом свободная парковка. Готовы выйти на сделку.
переулок Красина, дом 15с1, Москва, Россия
Цена:
39 900 000 руб.
219 231 руб./м²
Общая площадь:182 м²






















