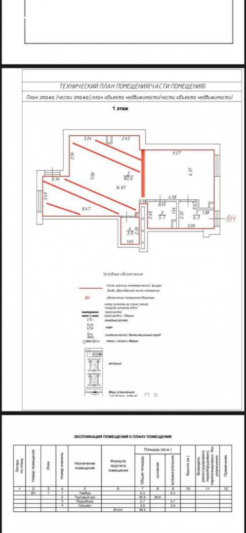
Аренда помещения свободного назначения, 97 м² , Радужная улица 18
Площадь: 97 м²
Цена аренды:
250 000 руб./мес
Цена:
2 578 руб./м²/мес

Радужная улица, дом
18,
Москва,
Россия
м. Бабушкинская (9 мин.)
Об объекте
- Этаж расположения помещения
- 1 этаж
- Административный округ
- Северо-Восточный административный округ
Описание объекта
==ЛОТ 224399 == ОТ СОБСТВЕННИКА, БЕЗ КОМИССИИ. Сдаётся помещение в обжитом, востребованном районе Москвы с высокой плотностью жителей и стабильным клиентским потоком. Это локация, где бизнесу не нужно объяснять, зачем он здесь — люди привыкли пользоваться услугами рядом с домом и возвращаться туда, где им удобно и комфортно. Помещение с двумя входами - со двора и с улицы, отлично подходит для грумминга, салона красоты, парикмахерской, стоматологии или другого сервиса повседневного спроса. Формат пространства позволяет быстро адаптировать его под нужды арендатора и запустить проект без лишних рисков. Район живой, понятный и отлично работает на постоянную аудиторию, что особенно важно для бизнеса, ориентированного на качество и долгую работу. Хороший выбор для тех, кто ищет стабильную локацию с уже сформированным спросом и возможностью уверенно развивать свой проект.
Радужная улица, дом 18, Москва, Россия
Цена аренды:
250 000 руб./мес
Общая площадь:97 м²















