Аренда помещения свободного назначения, 5700 м² , Широкая улица 31
Площадь: 5700 м²
Цена аренды:
12 944 000 руб./мес
Цена:
2 271 руб./м²/мес

Широкая улица, дом
31,
Москва,
Россия
м. Медведково (11 мин.)
Об объекте
- Этаж расположения помещения
- 1 этаж
- Административный округ
- Северо-Восточный административный округ
Описание объекта
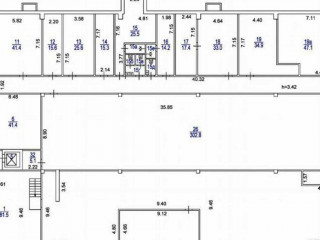
==ЛОТ 224444 == ОТ СОБСТВЕННИКА, БЕЗ КОМИССИИ. БЕЗ КОМИССИИ! Прямая аренда от собственника. Сдаются коммерческие помещения свободного назначения в Торговом центре «Широкий», расположенном по адресу: Москва, Широкая улица, 31. Объект находится в самом центре Северного Медведково, одного из самых густонаселенных спальных районов столицы. Удобное расположение и высокая видимость делают его превосходным выбором для ресторанов, магазинов и сервисов. Торговый центр «Широкий» обеспечивает больший трафик благодаря близости к новым жилым комплексам, автобусным остановкам и станции метро Медведково, которая находится всего в 10 минутах пешком. В окрестностях находятся банки, кафе, аптеки и благоустроенный парк, что создает комфортную атмосферу для клиентов. Также предоставляется удобная парковка на 50 машиномест и две обустроенные зоны для разгрузки, что делает логистику и доставку максимально удобной. Общая площадь помещений составляет 5700 кв. метров, с возможностью выбора площадей от 5 до 5700 кв. м. в зависимости от потребностей арендаторов. Распределение площадей: Подвал — 1546. 6 кв. М., 1 этаж — 2319. 6 кв. М., 2 этаж — 1834. 3 кв.м. Доступ 24/7. Торговый центр оснащен центральным отоплением и современными системами вентиляции. Это идеальное предложение для тех, кто ищет коммерческую недвижимость в активно развивающемся районе.
Широкая улица, дом 31, Москва, Россия
Цена аренды:
12 944 000 руб./мес
Общая площадь:5 700 м²



















