Аренда помещения свободного назначения, 180 м² , 2-я Рощинская улица 4
Площадь: 180 м²
Цена аренды:
504 000 руб./мес
Цена:
2 800 руб./м²/мес

2-я Рощинская улица, дом
4,
Москва,
Россия
м. Тульская (5 мин.)
Об объекте
- Этаж расположения помещения
- Цокольный этаж
- Административный округ
- Южный административный округ
Описание объекта
==ЛОТ 224546 == ОТ СОБСТВЕННИКА, БЕЗ КОМИССИИ.
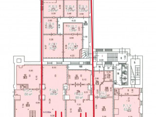
Сдается в аренду коммерческое помещение свободного назначения площадью 180 м? по адресу: Москва, 2-я Рощинская улица, 4. Помещение расположено на цокольном этаже нежилого административного здания, имеет два отдельных входа с фасада и со двора. Высота потолков составляет от 3,9 м, что позволяет организовать пространство максимально эффективно. Удобное месторасположение в 200 метрах от метро Тульская делает объект привлекательным для различных бизнесов. В окрестностях находятся популярные места, такие как Даниловский рынок, что обеспечивает приток потенциальных клиентов. Помещение отлично подходит для организации магазина, кафе, ресторана или предоставления бытовых услуг. Звоните, отвечу на все вопросы.
2-я Рощинская улица, дом 4, Москва, Россия
Цена аренды:
504 000 руб./мес
Общая площадь:180 м²












