Аренда помещения свободного назначения, 120 м² , Житная улица 10
Площадь: 120 м²
Цена аренды:
150 000 руб./мес
Цена:
1 250 руб./м²/мес

Житная улица, дом
10,
Москва,
Россия
м. Добрынинская (3 мин.)
Об объекте
- Этаж расположения помещения
- Цокольный этаж
- Административный округ
- Центральный административный округ
Описание объекта
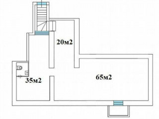
==ЛОТ 224612 == ОТ СОБСТВЕННИКА, БЕЗ КОМИССИИ. Помещение 120м2 с отдельным входом со двора, в 2х минутах пешком от м. Добрынинская, в 5ти минутах пешком от м. Октябрьская, внутри Садового кольца. Высокий пешеходный трафик мимо помещения из сквера к метро. Высокие потолки 4м, три окна выходят на две стороны, одно окно - на Садовое Кольцо, второе - внутри помещения и третье над входной дверью, все открываются для поступления свежего воздуха. Электрическая мощность - 15 кВт, возможно увеличение под ваш запрос. Свой санузел. Широкая входная дверь и лестница - около 2х метров. Помещение готово к эксплуатации, выполнен капитальный ремонт. Возможен долгосрочный договор, УСН
Аренда первые три месяца по 150 000 рублей, с 4го месяца - 300 000 рублей в месяц.
Житная улица, дом 10, Москва, Россия
Цена аренды:
150 000 руб./мес
Общая площадь:120 м²














