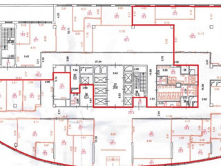
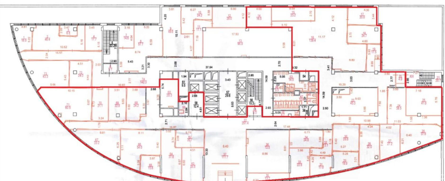
Аренда офиса, 1151 м² , Херсонская улица 43к3
Площадь: 1151 м²
Цена аренды:
2 878 250 руб./мес
Цена:
2 501 руб./м²/мес

Херсонская улица, дом
43к3,
Москва,
Россия
м. Калужская (16.5 мин.),
м. Новые Черемушки (22.5 мин.),
м. Профсоюзная (36 мин.)
Об объекте
- Этаж расположения помещения
- 2 этаж
- Административный округ
- Юго-Западный административный округ
Описание объекта
==ЛОТ 224637 == ОТ СОБСТВЕННИКА, БЕЗ КОМИССИИ. Предлагается в аренду офисный блок площадью 115,1 кв. м, расположенный на втором этаже бизнес-центра "Газойл Сити", класс В+. Помещение имеет смешанную планировку и включает в себя зону ресепшн и кухню. Объект предоставляется с отделкой, и арендатор освобождается от обязательств по ремонту после выезда.В арендную ставку включены налог на добавленную стоимость (НДС) и эксплуатационные расходы. Коммунальные платежи и услуги по уборке оплачиваются отдельно. В бизнес-центре функционируют столовая и кофейня, а также установлены банкоматы Сбербанка и Газпромбанка.В непосредственной близости от здания находятся магазины, предприятия общественного питания, аптеки и медицинские учреждения. Обеспечена удобная транспортная доступность: до станций метро Калужская и Зюзино можно добраться пешком за 15-17 минут. Кроме того, организован трансфер до бизнес-центра с помощью шаттл-басов.
Херсонская улица, дом 43к3, Москва, Россия
Цена аренды:
2 878 250 руб./мес
Общая площадь:1 151 м²









