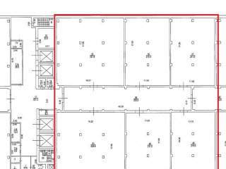
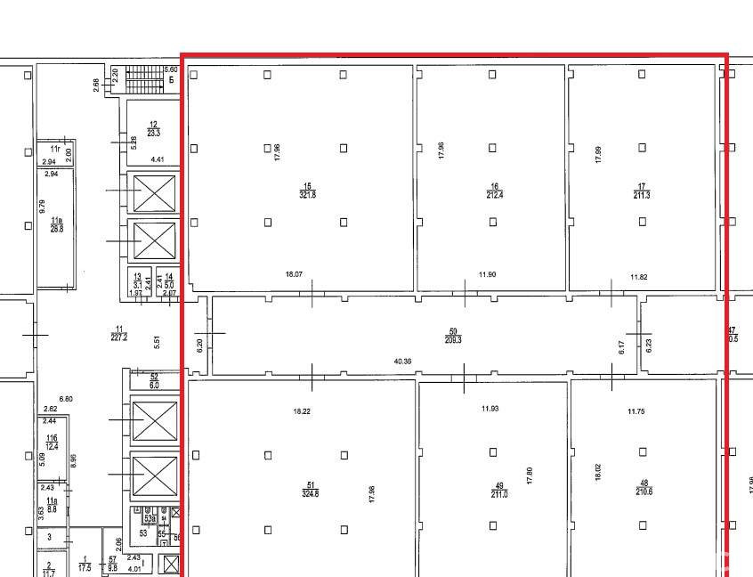
Аренда склада, 220 м² , Рязанский проспект 4Ас2
Площадь: 220 м²
Цена аренды:
264 000 руб./мес
Цена:
1 200 руб./м²/мес

Рязанский проспект, дом
4Ас2,
Москва,
Россия
м. Стахановская
- Контактные данные
- +7 (495) 02X-XX-XX
Об объекте
- Административный округ
- Юго-Восточный административный округ
Описание объекта
Аренда складских и производственных помещений у м. Стахановская, г. Москва, Рязанский проспект 4А
В аренду предлагаются складские и производственные помещения в современном складском комплексе «Кузьминское», всего в 200 метрах от метро «Стахановская».
Основные параметры:
- Этаж - 2-й.
- Высота потолков - 5 м.
- Электрическая мощность - 15 кВт (с возможностью увеличения) .
- Отопление - центральное.
- Температура на складе: от +15 до +22.
- Минимальный срок аренды - 11 мес.
Инфраструктура и преимущества:
- Прямая аренда от собственника, без комиссии.
- Удобные подъездные пути, есть пандус на 20 постов и теплая зона погрузки/разгрузки.
- Парковка.
- Лифты 5 тонн (4 шт. , 34 м) , работают с 08: 00 до 20: 00.
- Круглосуточный доступ (24/7) и охрана.
- Вентиляция приточно-вытяжная.
- На территории предусмотрены сервисные услуги: погрузочно-разгрузочные работы, уборка, интернет, охрана.
- Платный въезд на территорию.
- Есть офис для сотрудников и теплое помещение для работников склада
- Удобное транспортное сообщение: 4 км до ТТК, 7 км до МКАД, рядом Рязанский и Волгоградский проспекты, шоссе Энтузиастов. В пешей доступности метро Стахановская (1 мин) , и метро Нижегородская (10 минут) .
Отличный вариант под склад, мелкое производство или торгово-офисную деятельность. Подходит для дистрибуции, интернет-магазинов, компаний с активной логистикой.
Адрес: г. Москва, Рязанский проспект, д. 4А, стр. 2
Комплекс «Кузьминское»[#8083706#]
Рязанский проспект, дом 4Ас2, Москва, Россия
Цена аренды:
264 000 руб./мес
Общая площадь:220 м²


























