Продажа офиса, 163 м² , Бутырская улица уч1
Площадь: 163 м²
Цена продажи:
138 250 000 руб.
Цена:
848 160 руб./м²

Бутырская улица, дом
уч1,
Москва,
Россия
м. Савеловская (2 мин.)
Об объекте
- Этаж расположения помещения
- 7 этаж
- Административный округ
- Северный административный округ
Описание объекта
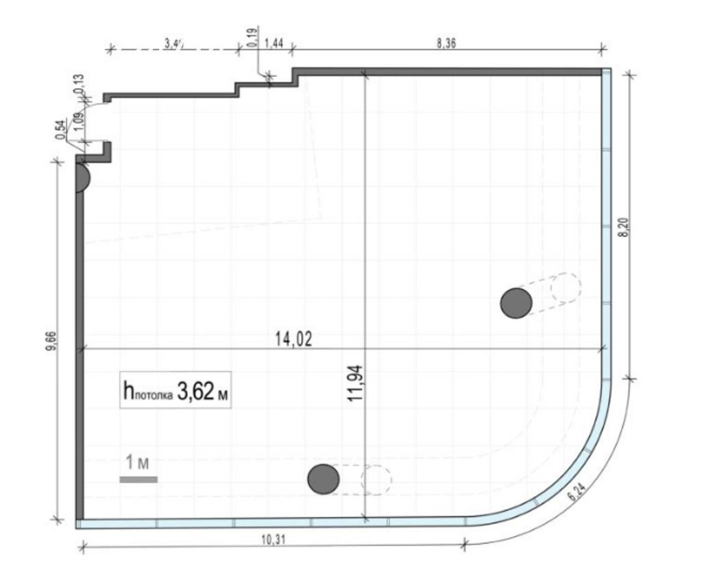
==ЛОТ 224714 == ОТ СОБСТВЕННИКА, БЕЗ КОМИССИИ. Предлагается к продаже офисное помещение площадью 163 квадратных метра, расположенное в Москве. Готовность планируется на август 2026 года. Объект обладает эксклюзивным предложением на рынке коммерческой недвижимости столицы.Офис имеет собственную террасу на крыше площадью 91 квадратный метр, которая может быть использована в качестве зоны для физической активности или пространства для работы и отдыха на открытом воздухе. Планировка помещения свободная, с минимальным количеством несущих конструкций, что позволяет гибко зонировать пространство в соответствии с потребностями арендатора.Панорамное остекление обеспечивает высокий уровень естественного освещения в дневное время и открывает панорамный вид на город в вечернее. В здании предусмотрена возможность установки мокрой точки, что позволяет организовать кухню или дополнительные санитарные узлы.
Бутырская улица, дом уч1, Москва, Россия
Цена:
138 250 000 руб.
848 160 руб./м²
Общая площадь:163 м²









